![]() |
ГОСТ Р 53782-2010
Группа Ж22
НАЦИОНАЛЬНЫЙ СТАНДАРТ РОССИЙСКОЙ ФЕДЕРАЦИИ
ЛИФТЫ
Правила и методы оценки соответствия лифтов при вводе в эксплуатацию
Lifts. Rules and methods of the appraisement of lifts conformity before putting in service
ОКС 91.140.90
ОКП 48 3600
Дата введения 2010-10-14
Предисловие
Цели и принципы стандартизации в Российской Федерации установлены Федеральным законом от 27 декабря 2002 г. N 184-ФЗ "О техническом регулировании", а правила применения национальных стандартов Российской Федерации - ГОСТ Р 1.0-2004 "Стандартизация в Российской Федерации. Основные положения"
Сведения о стандарте
1 РАЗРАБОТАН ООО Инженерный центр "НЕТЭЭЛ", Техническим комитетом по стандартизации ТК 209 "Лифты, эскалаторы, пассажирские конвейеры и подъемные платформы для инвалидов"
2 ВНЕСЕН ООО Инженерный центр "НЕТЭЭЛ", Техническим комитетом по стандартизации ТК 209 "Лифты, эскалаторы, пассажирские конвейеры и подъемные платформы для инвалидов"
3 УТВЕРЖДЕН И ВВЕДЕН В ДЕЙСТВИЕ Приказом Федерального агентства по техническому регулированию и метрологии от 31 марта 2010 г. N 43-ст
4 ВВЕДЕН ВПЕРВЫЕ
5 В настоящем стандарте реализованы нормы технического регламента "О безопасности лифтов"
Информация об изменениях к настоящему стандарту публикуется в ежегодно издаваемом информационном указателе "Национальные стандарты", а текст изменений и поправок - в ежемесячно издаваемых информационных указателях "Национальные стандарты". В случае пересмотра (замены) или отмены настоящего стандарта соответствующее уведомление будет опубликовано в ежемесячно издаваемом информационном указателе "Национальные стандарты". Соответствующая информация, уведомление и тексты размещаются также в информационной системе общего пользования - на официальном сайте Федерального агентства по техническому регулированию и метрологии в сети Интернет
ВНЕСЕНЫ: Изменение N 1, утвержденное и введенное в действие на территории РФ с 14.11.2010 Приказом Росстандарта от 03.11.2010 N 342-ст; Изменение N 2, утвержденное и введенное в действие Приказом Росстандарта от 24.02.2015 N 99-ст c 20.04.2015
Изменения N 1, 2 внесены изготовителем базы данных по тексту ИУС N 1, 2011 год, ИУС N 6, 2015 год
Введение
Настоящий стандарт разработан в соответствии с Постановлением Правительства Российской Федерации от 2 октября 2009 г. N 782 "Об утверждении технического регламента о безопасности лифтов".
Настоящий стандарт устанавливает правила и методы оценки соответствия смонтированных (модернизированных) на объектах лифтов перед вводом в эксплуатацию, порядок проведения технического освидетельствования лифтов, требования к оформлению результатов проверок, испытаний и измерений.
Изменение N 2 в настоящий стандарт внесено в связи с принятием технического регламента Таможенного союза "Безопасность лифтов" ТР ТС 011/2011, утвержденного Решением Комиссии Таможенного союза от 18 октября 2011 г. N 824 (далее - ТР ТС 011/2011)".
(Измененная редакция, Изм. N 1, 2).
1 Область применения
Настоящий стандарт применяется при оценке соответствия требованиям ТР ТС 011/2011 смонтированного или модернизированного на объекте лифта перед вводом в эксплуатацию.
Настоящий стандарт распространяется на оценку соответствия:
- лифтов, имеющих сертификат соответствия требованиям ТР ТС 011/2011;
- лифтов, изготовленных в период действия сертификатов соответствия, выданных до вступления в силу ТР ТС 011/2011;
- лифтов после выполнения модернизации.
(Измененная редакция, Изм. N 1, 2).
2 Нормативные ссылки
В настоящем стандарте использованы нормативные ссылки на следующие стандарты:
ГОСТ Р 51631-2008 (ЕН 81-70:2003) Лифты пассажирские. Технические требования доступности, включая доступность для инвалидов и других маломобильных групп населения
ГОСТ Р 52382-2010 (ЕН 81-72:2003) Лифты пассажирские. Лифты для пожарных
ГОСТ Р 52624-2006 (ЕН 81-71:2005) Лифты пассажирские. Требования вандалозащищенности
ГОСТ Р 53387-2009 (ИСО/ТС 14798:2006) Лифты, эскалаторы и пассажирские конвейеры. Методология анализа и снижения риска
ГОСТ Р 53780-2010 (ЕН 81-1:1998, ЕН 81-2:1998) Лифты. Общие требования безопасности к устройству и установке
Примечание - При пользовании настоящим стандартом целесообразно проверить действие ссылочных стандартов в информационной системе общего пользования на официальном сайте Федерального агентства по техническому регулированию и метрологии в сети Интернет или по ежегодно издаваемому информационному указателю "Национальные стандарты", который опубликован по состоянию на 1 января текущего года, и по соответствующим ежемесячно издаваемым информационным указателям, опубликованным в текущем году. Если ссылочный стандарт заменен (изменен), то при пользовании настоящим стандартом следует руководствоваться заменяющим (измененным) стандартом. Если ссылочный стандарт отменен без замены, то положение, в котором дана ссылка на него, применяется в части, не затрагивающей эту ссылку.
(Измененная редакция, Изм. N 1, 2).
3 Термины и определения
В настоящем стандарте применены термины по ТР ТС 011/2011, ГОСТ 16504, ГОСТ Р 55969 и по ГОСТ Р 53780, а также следующие термины с соответствующими определениями:
(Измененная редакция, Изм. N 1, 2).
3.1 применимые требования безопасности: Обязательные для выполнения требования ТР ТС 011/2011, применяемые с учетом назначения лифта и условий его эксплуатации.
(Измененная редакция, Изм. N 2).
3.2 назначение лифта: Указываемое в паспорте назначение лифта (например: грузовой, пассажирский и др.) с учетом специальных требований безопасности, установленных пунктами 2-5 приложения 1 ТР ТС 011/2011 (например: пассажирский, предназначенный для транспортировки пожарных во время пожара и др.).
(Введен дополнительно, Изм. N 1, 2).
3.3 техническое освидетельствование (полное техническое освидетельствование): Форма оценки соответствия лифта, смонтированного или модернизированного на объекте перед вводом в эксплуатацию, требованиям ТР ТС 011/2011 и взаимосвязанных с ним стандартов.
3.4 монтажная организация: Специализированная организация, осуществляющая монтаж, пусконаладочные работы, модернизацию лифта квалифицированным персоналом по монтажу лифтов в соответствии с документацией по монтажу и проектной документацией по установке лифта, а также принимающая декларацию о соответствии лифта требованиям ТР ТС 011/2011.
3.5 документация по монтажу: Техническая документация, включающая в себя инструкцию по монтажу изготовителя и монтажный чертеж.
3.6 взаимосвязанные с ТР ТС 011/2011 стандарты: Стандарты, включенные в Перечень стандартов, в результате применения которых на добровольной основе обеспечивается соблюдение требований технического регламента Таможенного союза "Безопасность лифтов" (ТР ТС 011/2011).
3.7 данные испытаний: Регистрируемые при испытаниях значения характеристик свойств объекта и (или) условий испытаний, наработок, а также других параметров, являющихся исходными для последующей обработки
3.8 результат испытаний: Оценка характеристик свойств объекта, установления соответствия объекта заданным требованиям по данным испытаний, результаты анализа качества функционирования объекта в процессе испытаний.
[ГОСТ 16504-81]
3.9 технический контроль: Проверка соответствия объекта установленным техническим требованиям.
[ГОСТ 16504-81]
3.10 измерительный контроль: Контроль, осуществляемый с применением средств измерений. [ГОСТ 16504-81]
3.11 визуальный контроль: Органолептический контроль, осуществляемый органами зрения. [ГОСТ 16504-81]
3.12 квалифицированный персонал: Работники, подтвердившие свою квалификацию в соответствии с профессиональным стандартом, устанавливающим квалификационные характеристики для выполнения соответствующих работ.
[ГОСТ Р 55969-2014]
3.3-3.12 (Введены дополнительно, Изм. N 2).
4 Общие положения
4.1 (Исключен, Изм. N 2).
4.2 Декларирование соответствия лифта осуществляет монтажная организация, на основании собственных доказательств и доказательств, полученных с участием третьей стороны - аккредитованной испытательной лаборатории (центра).
В качестве собственных доказательств используют протокол проверки функционирования лифта, проведенной монтажной организацией после окончания монтажа (модернизации) лифта, а также паспорт и монтажный чертеж смонтированного (модернизированного) лифта, проектную документацию на установку (модернизацию) лифта, приведенную в приложении К, анализ риска, в случае применения технических решений, не соответствующих требованиям, установленным в стандартах, взаимосвязанных с ТР ТС 011/2011.
В качестве доказательств, полученных с участием аккредитованной испытательной лаборатории (центра), используют Акт технического освидетельствования лифта, составленный в соответствии с приложением А, и протоколы испытаний по 12.1.
4.3 Оценку соответствия смонтированного, модернизированного лифта требованиям безопасности, установленным в ТР ТС 011/2011, осуществляют на основании подтверждения их соответствия требованиям стандартов, взаимосвязанных с ТР ТС 011/2011.
При применении технических решений, не соответствующих требованиям, установленным в стандартах, взаимосвязанных с ТР ТС 011/2011, должен быть выполнен анализ риска этих технических решений в соответствии с ГОСТ Р 53387, дополненный в необходимых случаях расчетами, чертежами и результатами испытаний, подтверждающими безопасность этого технического решения и его соответствие требованиям ТР ТС 011/2011.
4.2, 4.3. (Измененная редакция, Изм. N 1, 2).
4.4 Испытательная лаборатория (центр) в срок, не превышающий 30 рабочих дней со дня проведения оценки соответствия, направляет сведения (в бумажном или электронном виде) о результатах проведенных проверок, испытаний и измерений смонтированного (модернизированного) на объекте лифта перед вводом в эксплуатацию в созданный в установленном порядке аналитический центр для ведения реестра с целью обобщения данных, анализа информации и последующей выработки мер по безопасной эксплуатации лифтов. Содержание направляемых сведений приведено в приложении М.
4.5 Испытательная лаборатория (центр) выполняет работы по проверкам, испытаниям и измерениям при проведении технического освидетельствования лифтов за пределами места (мест) осуществления деятельности лаборатории (на объекте установки лифта) с использованием средств измерений, а также иных технических средств и материальных ресурсов, принадлежащих лаборатории на праве собственности или на ином законном основании, предусматривающем право владения и (или) пользования.
4.4, 4.5 (Введены дополнительно, Изм. N 2).
5 Правила оценки соответствия лифтов
5.1 (Измененная редакция, Изм. N 1); (Исключен, Изм. N 2).
5.2 Оценку соответствия в форме полного технического освидетельствования лифта осуществляют на основании договора между аккредитованной в установленном порядке испытательной лабораторией (центром) (третья сторона) и заявителем (монтажной организацией).
Заявитель подает заявку в испытательную лабораторию (центр) на проведение полного технического освидетельствования лифта (лифтов) посредством электронной почты, факсимильной связи, либо другим способом. При наличии в договоре между заявителем и испытательной лабораторией (центром) соответствующей нормы, допускается подавать заявку в устной форме. Заявка на проведение полного технического освидетельствования лифта (лифтов) должна содержать следующие сведения:
- наименование заявителя;
- место проведения полного технического освидетельствования (адрес объекта установки лифта);
- предполагаемую дату и время проведения полного технического освидетельствования;
- фамилию, инициалы, контактную информацию (телефон или др.) уполномоченного заявителем лица.
(Измененная редакция, Изм. N 1, 2).
5.3 Полное техническое освидетельствование лифта проводят специалисты аккредитованной испытательной лаборатории (центра) с участием представителей монтажной организации, и (при необходимости) в присутствии представителя организации, выполнившей строительные работы, связанные с монтажом (модернизацией) лифта.
Заявитель (монтажная организация) обеспечивает организацию проведения оценки соответствия, в том числе доступ специалистов аккредитованной испытательной лаборатории (центра) на объект установки лифта, наличие на объекте установки груза, предназначенного для проведения испытаний по В.4 (приложение В) и предоставляет комплект технической документации в соответствии с приложением И.
Управление лифтом, переключения и иные операции на лифте, необходимые для проведения проверок, испытаний и измерений, осуществляет квалифицированный персонал монтажной организации.
Проверки, испытания и измерения осуществляют специалисты по оценке соответствия лифтов требованиям безопасности испытательной лаборатории (центра), подтвердившие свою квалификацию в соответствии с профессиональным стандартом, устанавливающим квалификационные характеристики для выполнения соответствующих работ.
(Измененная редакция, Изм. N 1, 2).
5.4 При полном техническом освидетельствовании лифта осуществляют:
- идентификацию смонтированного лифта сертификату соответствия действующему в период изготовления лифта;
- проверку функционирования лифта и устройств безопасности лифта;
- визуальный контроль, испытание изоляции электрических цепей и электрооборудования и измерительный контроль заземления (зануления) оборудования лифта;
- испытание сцепления тяговых элементов с канатоведущим шкивом (барабаном трения) и испытание тормозной системы на лифте с электрическим приводом;
- испытание герметичности гидроцилиндра и трубопровода на лифте с гидравлическим приводом;
- проверку комплектности технической документации, поставляемой с лифтом (см. приложение И);
- технический контроль установки оборудования смонтированного лифта документации по монтажу и проектной документации по установке лифта в здание (сооружение);
- технический контроль установки оборудования модернизированного лифта проектной документации на модернизацию (в случае модернизации лифта);
- проверку выполнения рекомендаций по модернизации лифта, указанных в заключении по результатам оценки соответствия лифта, отработавшего назначенный срок службы (в случае модернизации лифта);
- технический контроль смонтированного (модернизированного) лифта требованиям безопасности, установленным в приложении 1 к ТР ТС 011/2011, или требованиям взаимосвязанных с ТР ТС 011/2011 стандартов в соответствии с приложением Ж;
- испытание прочности кабины, тяговых элементов, подвески и (или) опоры кабины, элементов их крепления.
(Измененная редакция, Изм. N 1, 2).
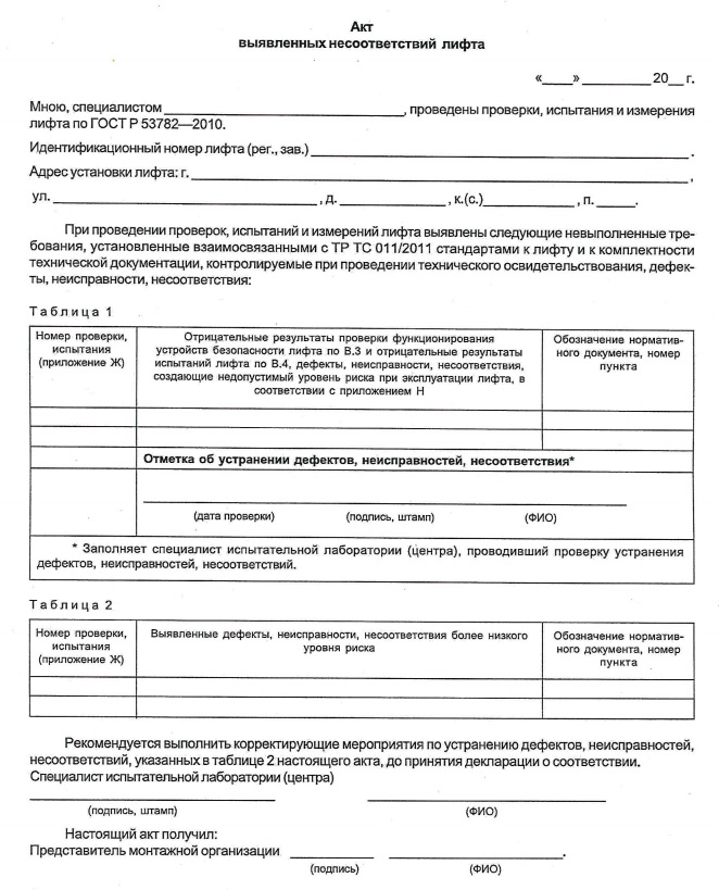
5.5 В случае выявления при полном техническом освидетельствовании лифта дефектов, несоответствий, неисправностей, а также невыполнения контролируемых требований к лифту и технической документации, установленных взаимосвязанными с ТР ТС 011/2011 стандартами, специалист аккредитованной испытательной лаборатории (центра) оформляет Акт выявленных несоответствий лифта по форме, приведенной в приложении Б, с указанием размеров, расстояний, зазоров, величин, несоответствующих установленным требованиям. При этом отрицательные результаты проверки функционирования устройств безопасности лифта по В.3 и отрицательные результаты испытаний лифта по В.4, а также дефекты, неисправности, несоответствия, создающие недопустимый уровень риска при эксплуатации лифта, в соответствии с приложением Н, указывают в таблице 1 Акта выявленных несоответствий лифта. Дефекты, неисправности, несоответствия более низкого уровня риска, указывают в таблице 2 Акта выявленных несоответствий лифта.
Акт технического освидетельствования лифта (приложение А) не выдают до устранения дефектов, неисправностей, несоответствий, указанных в таблице 1 Акта выявленных несоответствий лифта.
После устранения монтажной организацией дефектов, неисправностей, несоответствий, указанных в таблице 1 Акта выявленных несоответствий лифта, аккредитованная испытательная лаборатория (центр) осуществляет проверку устранения этих дефектов, неисправностей, несоответствий. При необходимости испытательная лаборатория (центр) проводит повторную проверку функционирования устройств безопасности по В.3 и испытания по В.4. При положительных результатах проверки (испытания) специалист аккредитованной испытательной лаборатории (центра) делает отметку об устранении дефектов, неисправностей, несоответствий в таблице 1 Акта выявленных несоответствий лифта.
(Измененная редакция, Изм. N 1, 2).
5.6 При положительных результатах полного технического освидетельствования специалист аккредитованной испытательной лаборатории (центра) делает запись в паспорте лифта о результатах проверок, испытаний, измерений и оформляет Акт технического освидетельствования лифта.
Оригиналы протоколов испытаний, оформленных по 12.1, и Акта технического освидетельствования лифта передают монтажной организации.
(Измененная редакция, Изм. N 1, 2).
5.7 Монтажная организация, до принятия декларации о соответствии, устраняет дефекты, несоответствия, неисправности, указанные в таблице 2 Акта выявленных несоответствий лифта, и оформляет Акт выполнения корректирующих мероприятий по форме, приведенной в приложении Л.
На основании собственных доказательств по 4.2, Акта технического освидетельствования лифта и при условии выполнения корректирующих мероприятий по устранению дефектов, несоответствий, неисправностей, указанных в таблице 2 Акта выявленных несоответствий лифта, монтажная организация принимает декларацию о соответствии лифта требованиям технического регламента.
Декларация о соответствии подлежит регистрации в органе по сертификации, аккредитованном в установленном порядке. Для регистрации декларации о соответствии заявитель представляет в орган по сертификации заявление и документы, приведенные в приложении Д.
(Измененная редакция, Изм. N 1, 2).
5.8 (Введен дополнительно, Изм. N 1); (Исключен, Изм. N 2).
6 Методы оценки соответствия лифтов
6.1 При проведении технического освидетельствования лифтов применяют методы, указанные в приложении В.
При испытаниях и техническом контроле используют следующие виды контроля:
- а) визуальный контроль;
- б) измерительный контроль.
При измерительном контроле используют метод прямых измерений.
(Измененная редакция, Изм. N 2).
6.2 (Исключен, Изм. N 1).
7 Условия проведения испытаний и измерений
7.1 Испытания и измерения проводят при показателях среды в помещениях (шахте, машинном, блочном помещениях), в том числе температуре и относительной влажности воздуха, находящихся в пределах, установленных в паспорте и (или) руководстве по эксплуатации лифта.
(Измененная редакция, Изм. N 2).
7.2 Испытания и измерения прекращают или приостанавливают при возникновении аварийной ситуации, угрожающей безопасности лиц, участвующих в испытаниях и измерениях.
Продолжение испытаний и измерений допускается только после устранения причин, вызвавших их прекращение или приостановку.
8 Требования к средствам измерений
При проведении проверок, испытаний и измерений должны использоваться средства измерений утвержденного типа, прошедшие поверку.Раздел 8 (Измененная редакция, Изм. N 2).
9 Порядок подготовки к проведению полного технического освидетельствования лифтов
9.1 Монтажная организация проводит проверку функционирования лифта во всех режимах работы, предусмотренных руководством (инструкцией) по эксплуатации изготовителя и оформляет протокол проверки функционирования лифта по форме, приведенной в приложении Г.
(Измененная редакция, Изм. N 2).
9.2 (Исключен, Изм. N 2).
10 Порядок проведения полного технического освидетельствования лифтов
10.1 (Исключен, Изм. N 2).
10.2 При полном техническом освидетельствовании лифта проводят проверки, испытания и измерения с учетом назначения лифта, а также с учетом его конструкции (электрический, гидравлический).
(Измененная редакция, Изм. N 1).
10.3 (Исключен, Изм. N 1).
11 Состав электроизмерительных работ*
_____________* Измененная редакция, Изм. N 2.
11.1 Электроизмерительные работы включают в себя:
- визуальный контроль заземления (зануления) и электрооборудования лифта;
- измерение сопротивления изоляции электрических цепей и электрооборудования лифта;
- проверку наличия цепи заземления (зануления);
- проверку срабатывания защиты при системе питания в которой нейтраль источника питания глухо заземлена (TN-C, TN-C-S, TN-S).
(Измененная редакция, Изм. N 2).
11.2, 11.3 (Исключены, Изм. N 2).
12 Требования к оформлению результатов проверок, испытаний и измерений*
_____________* Измененная редакция, Изм. N 2.
12.1 Результаты проверок, испытаний и измерений оформляют протоколом проверок, испытаний и измерений лифта (далее - протокол испытаний).
Протокол испытаний должен содержать следующую информацию:
- наименование и адрес испытательной лаборатории (центра);
- регистрационный номер аттестата аккредитации испытательной лаборатории (центра);
- номер и наименование протокола испытаний;
- дату проведения проверок, испытаний и измерений;
- фамилию и инициалы специалиста, проводившего проверки, испытания и измерения;
- место проведения проверок, испытаний и измерений (адрес установки лифта);
- идентификационный (заводской, регистрационный) номер лифта;
- указание на национальный стандарт, содержащий методы проверок, испытаний и измерений;
- сведения об использованных при проведении проверок, испытаний и измерений средствах измерений, с указанием их наименования, заводского номера, даты проведения поверки, номера свидетельства о поверке (при наличии) и наименования организации, выполнившей поверку;
- сведения о лифте, содержащие назначение лифта, наименование изготовителя лифта, величину номинальной грузоподъемности, скорости лифта, число остановок лифта;
- установленные требования к лифту, подлежащие контролю при проведении технического освидетельствования в соответствии с приложением Ж, с указанием структурного элемента и обозначения стандарта, устанавливающего контролируемые требования, а также результаты проверок этих требований;
- перечень технической документации, наличие которой контролируется при проведении технического освидетельствования в соответствии с приложением И, с указанием номера структурного элемента и обозначения нормативного документа, устанавливающего контролируемые требования, а также результаты проверки комплектности технической документации;
- результаты проверки функционирования устройств безопасности лифта по В.3.1-В.3.4 (приложение В);
- результаты испытаний лифта по В.4.1-В.4.4, В.4.6 (приложение В);
- данные испытаний:
- а) величину среднего ускорения (замедления) при посадке кабины на буфер по В.3.3 (приложение В);
- б) величину среднего ускорения (замедления) кабины лифта при экстренном торможении по В.4.1 (приложение В);
- в) величину среднего ускорения (замедления) кабины лифта при срабатывании разрывного клапана гидравлического лифта по В.3.4 (приложение В);
- г) величину скорости движения кабины в момент срабатывания разрывного клапана по В.3.4 (приложение В);
- д) величину рабочей скорости при движении незагруженной кабины вниз и вверх;
- е) величину скорости срабатывания ограничителя скорости;
- ж) величину освещенности кабины на аппаратах управления;
- и) величину освещенности кабины на уровне пола;
- к) внутренние размеры купе кабины (ширину, глубину, высоту).
В протокол испытаний допускается включать дополнительно другие данные испытаний.
Результаты проверки установленных требований к лифту и к комплектности технической документации лифта в протоколе испытаний оформляют в следующем виде.
В строке одной из трех граф таблицы результатов проверки требования ставится символ "V". При этом:
- при выполнении требования символ "V" ставится в строке графы "Требование выполняется";
- при невыполнении требования символ "V" ставится в строке графы "Требование не выполняется". В этом случае в Акте выявленных несоответствий лифта отражают конкретные несоответствия, дефекты, неисправности, с указанием размеров, расстояний, зазоров, величин, несоответствующих установленным требованиям;
- в случае, когда требование неприменимо для данного лифта символ "V" ставится в строке графы "Требование не применимо".
Данные испытаний в протоколе оформляют с указанием величины и единицы измерения.
Результаты электроизмерительных работ отражают в протоколе испытаний электрооборудования лифта.
Протокол испытаний электрооборудования лифта должен содержать следующую информацию:
- наименование и адрес испытательной лаборатории (центра);
- регистрационный номер аттестата аккредитации испытательной лаборатории (центра);
- номер и наименование протокола испытаний;
- дату проведения проверок, испытаний и измерений;
- фамилию и инициалы специалиста, проводившего проверки, испытания и измерения;
- место проведения проверок, испытаний и измерений (адрес установки лифта);
- идентификационный (заводской, регистрационный) номер лифта;
- указание на национальный стандарт, содержащий методы проверок, испытаний и измерений;
- сведения об использованных при проведении проверок, испытаний и измерений средствах измерений, с указанием их наименования, заводского номера, даты проведения поверки, номера свидетельства о поверке (при наличии) и наименования организации, выполнившей поверку;
- сведения о лифте, содержащие назначение лифта, наименование изготовителя лифта, величину номинальной грузоподъемности, скорости лифта, число остановок лифта;
- данные испытаний изоляции электрических цепей и электрооборудования, измерительного контроля заземления (зануления) оборудования лифта, согласования параметров цепи "фаза-нуль" с характеристиками аппаратов защиты от сверхтока, а также результаты визуального контроля электрооборудования лифта.
Каждая страница протоколов должна быть пронумерована, с указанием общего числа страниц.
Протоколы подписывают и заверяют штампом специалисты испытательной лаборатории (центра), проводившие проверки, испытания и измерения. Исправления в протоколе допускаются, только если они заверены подписью и штампом специалистов испытательной лаборатории (центра), проводивших проверки, испытания и измерения.
Допускается объединять протокол проверок, испытаний и измерений лифта и протокол испытаний электрооборудования лифта в один протокол.
12.2 Испытательная лаборатория (центр) хранит копии (второй экземпляр) Акта технического освидетельствования лифта и протоколов не менее одного года от даты проведения полного технического освидетельствования. Допускается хранение отсканированных акта и протоколов в электронном виде.
12.1, 12.2 (Измененная редакция, Изм. N 2).
12.3 (Измененная редакция, Изм. N 1); (Исключен, Изм. N 2).
13 Требования безопасности при проведении испытаний и измерений*
_____________* Измененная редакция, Изм. N 2.
13.1 Обеспечение безопасных условий проведения испытаний и измерений при полном техническом освидетельствовании лифта возлагается на персонал монтажной организации.
(Измененная редакция, Изм. N 2).
13.2 При проведении проверок, испытаний и измерений специалисты испытательной лаборатории и персонал монтажной организации должны соблюдать требования безопасности, установленные правилами, нормами, инструкциями, действующими в испытательной лаборатории (центре), монтажной организации и установленными на объекте монтажа или эксплуатации лифта.
(Измененная редакция, Изм. N 1, 2).
13.3 При выявлении нарушений, влияющих на безопасность проведения испытаний и измерений, работы на лифте должны быть прекращены. Продолжение испытаний и измерений допускается только после устранения выявленных нарушений.
Приложение А
(обязательное)
Акт технического освидетельствования лифта
Приложение Б
(рекомендуемое)
Акт выявленных несоответствий лифта

Приложение В
(обязательное)
Методы проведения проверок, измерений и испытаний
В.1 Проверка комплектности технической документации
Проверяют наличие проектной документации на установку (модернизацию) лифта и наличие комплекта сопроводительной документации, поставляемой с лифтом, включающего в себя:
- паспорт лифта, выполненный по образцу в соответствии с ГОСТ Р 53780-2010 (приложения ДБ, ДВ);
- копию сертификата на смонтированный лифт. При этом проверяют, что лифт изготовлен (дата изготовления лифта, указанная в паспорте и на лифте) в период действия сертификата соответствия. Копия сертификата соответствия на модернизированный лифт не требуется;
- копию сертификата на противопожарные двери (при необходимости);
- копии сертификатов на устройства безопасности лифта, подлежащие обязательной сертификации, за исключением случая, когда эти устройства безопасности изготовлены предприятием - изготовителем лифта и используются этим предприятием для комплектования лифтов собственного производства;
- монтажный чертеж;
- принципиальную электрическую схему с перечнем элементов схемы;
- принципиальную гидравлическую схему с перечнем элементов схемы (для гидравлического лифта);
- руководство (инструкцию) по эксплуатации;
- техническую документацию по модернизации (в случае модернизации лифта).
При проведении проверок, испытаний и измерений контролируют соответствие сведений указанных в паспорте лифта фактическим данным, а также проверяют соответствие монтажного (установочного) чертежа и принципиальной электрической (гидравлической) схемы фактическим данным.
В.2 Технический контроль
В.2.1 Идентификация смонтированного лифта сертификату соответствия
При идентификации смонтированного лифта проверяют соответствие сведений, указанных в паспорте лифта, сведениям, указанным в сертификате соответствия (включая приложения с перечнем оборудования лифта, устройств безопасности лифта), а именно сведений:
- об изготовителе лифта;
- о назначении лифта (пассажирский, грузовой и др.);
- о типе привода (электрический, гидравлический и др.);
- о типе и модели лифта;
- о номинальной грузоподъемности, скорости лифта;
- об изготовителе и типе (модели) основных узлов и механизмов лифта;
- об изготовителе и модели (индексе) устройств безопасности лифта.
При проведении проверок, испытаний и измерений проверяют соответствие сведений, указанных в паспорте и сертификате соответствия лифта, фактически установленному оборудованию лифта. В случае модернизации лифта проверяют соответствие сведений, указанных в паспорте и технической документации по модернизации, фактически установленному оборудованию лифта.
При идентификации смонтированного лифта осуществляют идентификацию устройств безопасности лифта. Для модернизированного лифта идентификацию осуществляют в случае замены (установки) устройств безопасности лифта.
При идентификации устройств безопасности лифта проверяют соответствие сведений, указанных в паспорте лифта, сведениям, указанным в сертификате соответствия, а именно сведений:
- об изготовителе устройства безопасности лифта;
- о типе или модели устройства безопасности (допускается использовать номер или индекс чертежа устройства безопасности).
При проведении проверок, испытаний и измерений проверяют соответствие сведений об устройстве безопасности, указанных в паспорте и сертификате соответствия, фактически установленным устройствам безопасности лифта.
В.2.2 Технический контроль смонтированного (модернизированного) лифта требованиям безопасности, установленным в приложении 1 к ТР ТС 011/2011, или требованиям взаимосвязанных с ТР ТС 011/2011 стандартов
Проводят проверку соответствия лифта требованиям, установленным взаимосвязанными с ТР ТС 011/2011 стандартами (см. приложение Ж).
В.2.3 Технический контроль установки оборудования смонтированного (модернизированного) лифта документации по монтажу и проектной документации по установке лифта в здание (проектной документации на модернизацию)
Проводят проверку соответствия установки оборудования смонтированного (модернизированного) лифта документации по монтажу и проектной документации по установке лифта в здание (проектной документации на модернизацию).
При проверке контролируют:
- размеры приямка, расположение выключателя освещения шахты, кнопки (кнопок) "Стоп", светильника освещения шахты;
- установку натяжных устройств (ограничителя скорости, уравновешивающих канатов, цепей и др.);
- размеры и расположение буферов;
- размеры перегородки между лифтами, при наличии в одной шахте нескольких лифтов;
- доступ в приямок (дверь или лестница);
- наличие (отсутствие) пространства (помещения) под шахтой лифта, доступного для людей;
- местоположение и основные размеры машинного помещения, расположение привода и основного оборудования (для лифтов с машинным помещением);
- размеры зон обслуживания оборудования и устройств управления в машинном помещении и шахте, а также размеры проходов к зонам обслуживания в машинном помещении;
- размеры канатоведущего шкива (барабана трения) и отводного блока (при наличии);
- доступ в машинное помещение (дверь, лестница, ограждение площадки перед входом в машинное помещение и др.);
- местоположение и основные размеры блочного помещения (при наличии);
- размеры зон обслуживания оборудования и проходов к зонам обслуживания в блочном помещении (при наличии блочного помещения);
- расположение и размеры имеющихся блоков в блочном помещении (при наличии блочного помещения);
- доступ в блочное помещение (дверь, лестница, ограждение площадки перед входом в блочное помещение, люк и др.);
- зазоры вверху шахты и в приямке;
- зазоры между оборудованием лифта в шахте;
- установку направляющих;
- горизонтальное расстояние между элементами кабины и противовеса;
- площадку для размещения персонала на крыше кабины, включая ограждение площадки;
- размещение и основные размеры дверей шахты лифта на этажных площадках;
- размещение и размеры дверей для технического обслуживания, а также аварийных дверей;
- размеры кабины и ее входных проемов;
- размеры ограждения шахты, в случае частично огражденной шахты, а также размеры вентиляционных отверстий в ограждении шахты при их наличии;
- освещенность машинного помещения, зон обслуживания оборудования лифта, шахты, кабины и др.
Технический контроль по В.2.3 (приложение В) рекомендуется совмещать с техническим контролем по В.2.2 (приложение В).
В.2.4 Проверка функционирования лифта
При проверке функционирования лифта контролируют работу лифта во всех режимах, предусмотренных руководством (инструкцией) по эксплуатации, а также работу лебедки электрического лифта (привода гидравлического лифта), дверей шахты, кабины, привода дверей, сигнализации, освещения.
При этом:
В.2.4.1 В режиме "Нормальная работа":
- проверяют работу лифта от постов управления на этажных площадках ("Вызовы"). Для лифта с автоматическими дверями должно быть обеспечено движение кабины лифта на тот этаж, на котором зафиксирован "Вызов", с последующим автоматическим открыванием и закрыванием дверей кабины и шахты. Для лифта, оборудованного ручным приводом дверей шахты, после прибытия кабины на этаж, на котором зафиксирован "Вызов", должно быть обеспечено автоматическое отпирание, позволяющее вручную открыть дверь шахты;
- проверяют работу сигнального устройства "Занято" на этажных площадках, если лифт оборудован таким устройством;
- проверяют работу сигнальных устройств о регистрации "Вызова" и "Приказа" на этажных площадках и в кабине, если лифт оборудован такими устройствами;
- проверяют работу лифта от поста управления в кабине ("Приказы"). Кабина лифта с автоматическими дверями должна приходить на тот этаж, "Приказ" которого был зафиксирован на посту управления в кабине, с последующим открыванием дверей кабины и шахты. Для лифта, оборудованного ручным приводом дверей кабины и шахты, после прибытия кабины на этаж, "Приказ" которого был зафиксирован на посту управления в кабине, должно быть обеспечено открытие вручную дверей кабины и шахты;
- проверяют срабатывание устройства реверсирования автоматических дверей, при нахождении в дверном проеме препятствия;
- проверяют работу кнопок "Двери", "Отмена", "Стоп" в кабине (при их наличии);
- проверяют работу кнопки "Вызов персонала", а также работу двусторонней переговорной связи между кабиной лифта и местом нахождения обслуживающего персонала (помещение, диспетчерский пункт). Для лифтов без машинного помещения проверяют функционирование двусторонней переговорной связи между кабиной лифта и переговорным устройством, находящимся около устройства управления лифтом. На лифтах для пожарных также проверяют функционирование двусторонней переговорной связи между кабиной лифта и основным посадочным этажом;
- проверяют осуществление передачи информации от лифта к устройству диспетчерского контроля по ГОСТ Р 53780-2010 (подпункт 5.5.3.21), для лифтов, оборудованных диспетчерским контролем;
- проверяют функционирование системы управления лифтом, обеспечивающей отключение привода в соответствии с ГОСТ Р 53780-2010 (подпункты 5.5.3.18 и 6.8.12);
- проверяют работу устройства, размыкающего цепь безопасности при несанкционированном открытии двери шахты, если лифт оборудован таким устройством;
- для лифтов с групповым управлением должны быть проверены требования, указанные в ГОСТ Р 53780-2010 (подпункт 5.5.3.8);
- проверяют исключение возможности выполнения новой команды управления, кроме команды "Стоп", подаваемой из машинного помещения или устройства управления по ГОСТ Р 53780-2010 (подпункт 5.3.4.5), до выполнения ранее поданной команды (кроме лифтов с собирательной системой управления);
- измеряют точность остановки кабины на каждой остановке лифта;
- измеряют горизонтальное расстояние между порогами двери кабины и двери шахты на каждой остановке лифта.
В.2.4.2 В режиме "Управление из машинного помещения" проверяют:
- исключение действия команд управления от аппаратов, установленных вне машинного помещения (вызовов, приказов и др.);
- предотвращение воздействия подвижной отводки на автоматические замки дверей шахты у лифта, оборудованного такой отводкой;
- исключение автоматического открытия дверей шахты и кабины;
- обеспечение автоматической остановки кабины на уровне нижней и верхней этажной площадки;
- включение сигнала "Занято" у лифта, оборудованного таким сигналом;
- работу устройства для остановки лифта (автоматического выключателя, кнопки, выключателя и др.);
- наличие надписи "Стоп" на устройстве для остановки лифта или рядом с этим устройством;
- возможность наблюдения за работой привода или получения информации о направлении движения кабины;
- возможность получения информации о нахождении кабины в зоне отпирания дверей;
- возможность движения кабины при воздействии на соответствующий самовозвратный аппарат управления;
- возможность пуска кабины после каждой остановки только после вновь поданной команды управления.
В.2.4.3 На лифте, у которого предусмотрена возможность управления с крыши кабины в режиме "Ревизия":
- проверяют работу лифта от аппаратов управления, предназначенных для пуска кабины вверх и вниз;
- проверяют наличие маркировки, указывающей направление движения на аппарате управления или рядом с ним;
- проверяют расположение устройства для остановки лифта (кнопка "Стоп", несамовозвратный выключатель и др.), а также его срабатывание;
- измеряют скорость движения кабины в режиме "Ревизия";
- измеряют расстояние от площадки обслуживания на крыше кабины до перекрытия шахты;
- проверяют отключение системы, препятствующей сползанию кабины у гидравлического лифта;
- проверяют, что движение при управлении с крыши осуществляется при:
- а) постоянном воздействии на аппарат управления;
- б) замкнутых контактах электрических устройств безопасности, за исключением случая, предусмотренного ГОСТ Р 53780-2010 (подпункт 5.5.3.14);
- в) исключении действия команд управления от аппаратов, установленных в кабине, машинном помещении, на устройстве по ГОСТ Р 53780-2010 (подпункт 5.3.4.5), и на этажных площадках;
- г) предотвращении воздействия подвижной отводки на автоматические замки дверей шахты у лифта, оборудованного такой отводкой;
- д) исключении автоматического открытия дверей шахты и кабины;
- е) включенном сигнале "Занято" у лифта, оборудованного таким сигналом.
В.3 Проверка функционирования устройств безопасности лифта
В.3.1 Проверка функционирования ограничителя скорости
При проверке функционирования ограничителя скорости лифта проводят:
- измерение величины скорости срабатывания ограничителя скорости;
- проверку способности приведения в действие ловителей;
- проверку срабатывания электрических устройств безопасности ограничителя скорости по ГОСТ Р 53780-2010 (подпункт 5.5.4.20), и в случае необходимости, по ГОСТ Р 53780-2010 (подпункт 5.5.4.21
- проверку наличия таблички со сведениями, установленными ГОСТ Р 53780-2010 (подпункт 5.4.7.11).
В.3.2 Проверка функционирования ловителей
При проверке функционирования ловителей проводят:
- проверку срабатывания ловителей, остановку и удержание на направляющих движущейся вниз кабины (противовеса, уравновешивающего устройства кабины);
- проверку автоматического возврата ловителей в исходное положение после перемещения кабины (противовеса), остановленных ловителями;
- проверку срабатывания электрического устройства безопасности ловителей по ГОСТ Р 53780-2010 (подпункт 5.5.4.23);
- проверку наличия таблички со сведениями по ГОСТ Р 53780-2010 (подпункт 5.4.6.10).
Ловители, приводимые в действие от ограничителя скорости и устройства, срабатывающего от обрыва или слабины тяговых элементов, проверяют от каждого из этих устройств.
Проверку функционирования ловителей проводят при движении кабины вниз с рабочей скоростью при нахождении в кабине груза, масса которого:
- превышает номинальную грузоподъемность лифта на 25% для ловителей плавного торможения;
- равна номинальной грузоподъемности лифта для ловителей мгновенного действия (резкого торможения) или ловителей мгновенного действия с амортизацией.
Ловители должны останавливать и удерживать на направляющих движущуюся вниз кабину.
Проверку функционирования ловителей противовеса (уравновешивающего устройства кабины) проводят при движении противовеса (уравновешивающего устройства кабины) вниз с рабочей скоростью при незагруженной кабине.
Ловители должны останавливать и удерживать на направляющих движущийся вниз противовес (уравновешивающее устройство кабины).
В.3.3 Проверка функционирования буфера
При проверке функционирования буфера проводят:
- измерение ускорения (замедления) кабины при посадке на буфер;
- проверку уровня масла в гидравлическом буфере;
- проверку возврата плунжера гидравлического буфера после снятия нагрузки с буфера;
- проверку срабатывания электрического устройства безопасности, контролирующего возврат гидравлического буфера в исходное состояние по ГОСТ Р 53780-2010 (подпункт 5.5.4.29);
- проверку наличия таблички со сведениями, установленными ГОСТ Р 53780-2010 (подпункт 5.4.8.6). Проверку функционирования проводят при опускании кабины (противовеса или уравновешивающего устройства кабины) на соответствующий буфер.
Проверку функционирования энергонакопительного буфера кабины проводят при движении кабины на рабочей скорости с равномерно распределенным по полу кабины грузом, масса которого равна номинальной грузоподъемности лифта.
Проверку функционирования энергорассеивающего буфера кабины проводят с равномерно распределенным по полу кабины грузом, масса которого равна номинальной грузоподъемности лифта. Проверку функционирования проводят при движении кабины на рабочей скорости или на скорости, для которой был рассчитан ход буфера, в случае применения буфера с укороченным ходом.
Буфер должен ограничивать перемещение кабины вниз. При этом среднее ускорение (замедление) кабины не должно превышать величину 9,81 м/с.
Проверку функционирования энергонакопительного буфера противовеса проводят при движении незагруженной кабины вверх с рабочей скоростью.
Проверку функционирования энергорассеивающего буфера противовеса проводят при движении незагруженной кабины вверх на рабочей скорости или на скорости, для которой был рассчитан ход буфера, в случае применения буфера с укороченным ходом.
Буфер должен ограничивать перемещение противовеса вниз.
После проверки функционирования ловителей и буфера проводят визуальный контроль деталей кабины и противовеса (уравновешивающего устройства кабины), ловителей и буфера. Повреждения и остаточная деформация металлоконструкций, несущих элементов кабины, тяговых элементов, деталей подвески (опоры) кабины, противовеса (уравновешивающего устройства кабины), ловителей, буфера (буферов) после проведения проверки функционирования не допускаются.
В.3.4 Проверка функционирования разрывного клапана лифта с гидравлическим приводом
Проверку функционирования разрывного клапана проводят при движении вниз кабины с грузом, масса которого соответствует номинальной грузоподъемности лифта, на скорости, необходимой для срабатывания разрывного клапана. При проверке функционирования груз должен быть равномерно распределен по полу кабины лифта. Разрывной клапан должен остановить кабину лифта и удерживать ее в неподвижном состоянии.
При проверке функционирования проводят:
- измерение скорости движения кабины в момент срабатывания разрывного клапана;
- измерение ускорения (замедления) кабины лифта при ее остановке разрывным клапаном.
Разрывной клапан должен сработать не позже момента увеличения скорости движения кабины вниз на величину, на 0,3 м/с превышающую номинальную скорость.
Величина среднего ускорения (замедления) кабины при ее остановке разрывным клапаном не должна превышать 9,81 м/с.
На лифтах с несколькими гидроцилиндрами, с установленными на них отдельными разрывными клапанами, соединенными друг с другом для одновременного закрывания, после срабатывания разрывных клапанов проводят проверку наклона пола кабины. Не допускается превышение более чем на 5% наклона пола кабины от его нормального положения.
В.3.5 Проверка функционирования замков двери шахты
При проверке функционирования замков двери шахты проводят:
- проверку работы замков дверей шахты;
- проверку возможности движения кабины только после перемещения запирающего элемента автоматического замка двери шахты не менее чем на 7 мм в ответную часть замка;
- проверку срабатывания электрического устройства безопасности автоматического замка по ГОСТ Р 53780-2010 (подпункт 5.5.4.15);
- проверку наличия таблички со сведениями, установленными ГОСТ Р 53780-2010 (подпункт 5.4.1.13.5).
В.3.6 Проверка функционирования электрических устройств безопасности
При проверке функционирования электрических устройств безопасности проверяют, что:
- электрические устройства безопасности функционируют в соответствии с требованиями, установленными взаимосвязанными с ТР ТС 011/2011 стандартами;
- электрические устройства безопасности включены в цепь безопасности (за исключением концевого выключателя, действующего в цепи главного тока электродвигателя) и при срабатывании размыкают цепь безопасности и предотвращают пуск электродвигателя главного привода или вызывают его остановку;
- срабатывание контакта безопасности происходит за счет его принудительного размыкания.
При проверке функционирования контролируют все электрические устройства безопасности, которые установлены на лифте и указаны в паспорте лифта.
Проверке подлежат следующие электрические устройства безопасности:
- контроля перехода кабиной лифта крайних этажных площадок (концевые выключатели) по ГОСТ Р 53780-2010 (подпункт 5.5.4.9);
- контроля закрытия двери шахты по ГОСТ Р 53780-2010 (подпункт 5.5.4.12);
- контроля натяжения ремней по ГОСТ Р 53780-2010 (подпункт 5.5.4.14);
- контроля закрытия створки двери шахты, не оборудованной замком по ГОСТ Р 53780-2010 (подпункт 5.5.4.16);
- контроля закрытия двери шахты для технического обслуживания оборудования, аварийной двери или смотрового люка в шахте по ГОСТ Р 53780-2010 (подпункт 5.5.4.17);
- контроля закрытия двери кабины по ГОСТ Р 53780-2010 (подпункт 5.5.4.18);
- контроля запирания замка аварийной двери или люка кабины по ГОСТ Р 53780-2010 (подпункт 5.5.4.19);
- для остановки лифта (выключатель, кнопка "Стоп") по ГОСТ Р 53780-2010 (подпункт 5.5.4.22);
- контроля обрыва или относительного перемещения тяговых элементов по ГОСТ Р 53780-2010 (подпункт 5.5.4.24);
- контроля обрыва или вытяжки каната ограничителя скорости по ГОСТ Р 53780-2010 (подпункт 5.5.4.25);
- контроль натяжения уравновешивающих канатов по ГОСТ Р 53780-2010 (подпункт 5.5.4.26);
- контроля срабатывания устройства, ограничивающего подскок натяжного устройства уравновешивающих канатов по ГОСТ Р 53780-2010 (подпункт 5.5.4.27);
- контроля положения съемного устройства для ручного перемещения кабины (положения съемного штурвала) по ГОСТ Р 53780-2010 (подпункт 5.5.4.28);
- отключения цепей управления из шахты по ГОСТ Р 53780-2010 (подпункт 5.5.4.30);
- отключения цепей управления из блочного помещения по ГОСТ Р 53780-2010 (подпункт 5.5.4.31);
- контроля положения площадки обслуживания по ГОСТ Р 53780-2010 (подпункт 5.5.4.32);
- контроля положения блокировочного устройства по ГОСТ Р 53780-2010 (подпункт 5.5.4.33);
- контроля положения механических устройств для остановки кабины по ГОСТ Р 53780-2010 (подпункт 5.5.4.34);
- контроля положения складного ограждения на крыше кабины по ГОСТ Р 53780-2010 (подпункт 5.5.4.35);
- контроля положения складного щита под порогом кабины по ГОСТ Р 53780-2010 (подпункт 5.5.4.36);
- контроля положения механизма, блокирующего канат безопасности по ГОСТ Р 53780-2010 (подпункт 5.5.4.37);
- контроля положения рычага, соединенного с ловителями по ГОСТ Р 53780-2010 (подпункт 5.5.4.38);
- контроля положения упора, предотвращающего опускание кабины по ГОСТ Р 53780-2010 (подпункт 5.5.4.39).
В.4 Испытания лифта
В.4.1 Испытание тормозной системы электрических лифтов
Испытание проводят посредством отключения питания электродвигателя и тормоза при движении кабины вниз на рабочей скорости с грузом, масса которого на 25% превышает номинальную грузоподъемность лифта. Тормоз должен остановить привод. При этом ускорение (замедление) кабины не должно превышать величину 9,81 м/с.
После испытания проводят визуальный контроль металлоконструкций и несущих элементов кабины, тяговых элементов, деталей подвески (опоры) кабины, противовеса (уравновешивающего устройства кабины). Повреждения и остаточная деформация металлоконструкций и несущих элементов кабины, тяговых элементов, деталей подвески (опоры) кабины, противовеса (уравновешивающего устройства кабины) после проведения испытания не допускается.
В.4.2 Испытание электропривода электрических лифтов
Электропривод лифта при питании от управляемого преобразователя испытывают на выполнение электрического торможения (удержания), если оно предусмотрено конструкцией лифта.
Испытание проводят при нахождении незагруженной кабины на уровне верхней посадочной площадки с разомкнутым тормозом в течение 3 мин. Допускается автоматическое перемещение кабины (выравнивание) в пределах уровня точности остановки с последующим ее удерживанием.
В.4.3 Испытание сцепления канатов с канатоведущим шкивом или барабаном трения
Испытание сцепления канатов с канатоведущим шкивом или барабаном трения проводят при спуске на рабочей скорости находящейся в нижней части шахты кабины с грузом, масса которого на 25% превышает номинальную грузоподъемность лифта. При этом на нижнем этаже должна происходить полная остановка кабины до ее соприкосновения с буферами.
Невозможность подъема незагруженной кабины при нахождении противовеса на сжатом буфере проверяется при незамкнутом тормозе перемещением пустой кабины вверх вручную от штурвала или от электродвигателя на пониженной скорости.
При испытании не должен происходить подъем (подтягивание) кабины.
В.4.4 Испытание герметичности гидроцилиндра и трубопровода лифта с гидравлическим приводом
Испытание следует проводить в следующем порядке:
- а) установить кабину на крайней верхней остановке, выключить вводное устройство и ручным насосом гидропривода поднять кабину до полного выдвижения плунжера;
- б) ручным насосом гидропривода увеличить давление до 200% от номинального (при этом требуется регулировка перепускного клапана ограничения давления) и удерживать систему под давлением 5 мин
- в) опустить лифт на крайнюю верхнюю остановку и провести регулировку перепускного клапана ограничения давления в исходное положение;
- г) провести визуальный контроль гидроцилиндра и трубопровода и убедиться в отсутствии течи масла из гидроцилиндра и трубопровода гидропривода лифта.
В.4.5 Испытание электрооборудования лифта (электроизмерительные работы)
При проведении электроизмерительных работ осуществляют:
- визуальный контроль заземления (зануления) и составных элементов электрооборудования лифта. При этом проводят проверку состояния электрооборудования и его соответствия паспортным данным и ГОСТ Р 53780-2010 (подпункт 5.5.5);
- испытание силовых, вторичных, осветительных цепей электропроводок, цепей безопасности, а также цепей управления напряжением свыше 50 В переменного тока, не содержащих устройств микроэлектроники и полупроводниковых приборов. Испытание проводят мегаомметром с рабочим напряжением не менее 1000 В. Испытание электрических цепей лифтов допускается проводить в соответствии с рекомендациями руководства (инструкции) по эксплуатации изготовителя. При этом сопротивление изоляции проводов, кабелей должно быть не менее 1,0 МОм, а сопротивление изоляции обмоток электродвигателей - не менее 0,5 МОм;
- проверку наличия цепи между заземленной установкой и элементами заземленной установки путем измерения переходного сопротивления контактов. При этом переходное сопротивление каждого контакта должно быть не более 0,05 Ом;
- проверку согласования параметров цепи "фаза-нуль" с характеристиками аппаратов защиты и непрерывности защитных проводников посредством измерения тока однофазного короткого замыкания для каждой из фаз. При этом ток однофазного короткого замыкания должен составлять не менее:
- а) 3-кратного значения номинального тока плавкой вставки предохранителя;
- б) 3-кратного значения номинального тока нерегулируемого расцепителя автоматического выключателя с обратнозависимой от тока характеристикой;
- в) 3-кратного значения уставки по току срабатывания регулируемого расцепителя автоматического выключателя с обратнозависимой от тока характеристикой;
- г) 1,1 верхнего значения тока срабатывания мгновенно действующего расцепителя (отсечки).
В.4.6 Испытание прочности кабины, тяговых элементов, подвески и (или) опоры кабины, элементов их крепления
В.4.6.1 Испытание прочности кабины, тяговых элементов, подвески и (или) опоры кабины, элементов их крепления на электрических лифтах
Испытание проводят посредством отключения питания электродвигателя и тормоза при движении кабины вниз на рабочей скорости с грузом, масса которого на 25% превышает номинальную грузоподъемность лифта.
После испытания проводят визуальный контроль металлоконструкций и несущих элементов кабины, тяговых элементов, деталей подвески (опоры) кабины, противовеса (уравновешивающего устройства кабины). Повреждения и остаточная деформация металлоконструкций и несущих элементов кабины, тяговых элементов, деталей подвески (опоры) кабины, противовеса (уравновешивающего устройства кабины) после проведения испытания не допускается.
Испытание прочности кабины, тяговых элементов, подвески и (или) опоры кабины, элементов их крепления на электрических лифтах рекомендуется совмещать с испытанием тормозной системы по В.4.1 (приложение В).
В.4.6.2 Испытание прочности кабины, тяговых элементов, подвески и (или) опоры кабины, элементов их крепления на гидравлических лифтах
Испытание проводят при движении вниз кабины с грузом, масса которого соответствует номинальной грузоподъемности лифта, на скорости, необходимой для срабатывания разрывного клапана. При испытании груз должен быть равномерно распределен по полу кабины лифта.
После испытания проводят визуальный контроль металлоконструкций и несущих элементов кабины, тяговых элементов, деталей подвески (опоры) кабины, уравновешивающего устройства кабины. Повреждения и остаточная деформация металлоконструкций и несущих элементов кабины, тяговых элементов, деталей подвески (опоры) кабины, уравновешивающего устройства кабины после проведения испытания не допускается.
Испытание прочности кабины, тяговых элементов, подвески и (или) опоры кабины, элементов их крепления на гидравлических лифтах рекомендуется совмещать с проверкой функционирования разрывного клапана по В.3.4 (приложение В).
Приложение В. (Измененная редакция, Изм. N 1, 2).
Приложение Г
(рекомендуемое)
Протокол проверки функционирования лифта

Приложение Д
(рекомендуемое)
Перечень документов, предоставляемых в орган по сертификации для регистрации декларации о соответствии лифта требованиям ТР ТС 011/2011
Для регистрации декларации о соответствии монтажная организация предоставляет в орган по сертификации непосредственно или направляет почтовым отправлением с описью вложения и уведомлением о вручении:
а) заявление о регистрации декларации о соответствии, подписанное заявителем;
б) два экземпляра декларации о соответствии на бумажном носителе, оформленные по установленной форме, подписанные заявителем (подпись - не факсимильная) и заверенные его печатью;
в) копию документа, подтверждающего факт внесения сведений о юридическом лице (заявителе) в Единый государственный реестр юридических лиц (с указанием государственного регистрационного номера записи о государственной регистрации юридического лица), или документа, подтверждающего факт внесения сведений об индивидуальном предпринимателе в Единый государственный реестр индивидуальных предпринимателей (с указанием государственного регистрационного номера записи о государственной регистрации индивидуального предпринимателя);
г) копии доказательных материалов, предусмотренных ТР ТС 011/2011, а именно:
- копию протокола проверки функционирования лифта;
- копию листов паспорта лифта, содержащих общие сведения, основные технические данные и характеристики оборудования лифта;
- копию монтажного чертежа;
- копию Акта технического освидетельствования лифта;
- копию протокола проверок, испытаний и измерений лифта;
- копию протокола испытаний электрооборудования лифта;
- копию сертификата соответствия на смонтированный лифт;
- копии сертификатов соответствия на устройства безопасности лифта (с учетом требований пункта 2.7 статьи 6 ТР ТС 011/2011);
- копию сертификата соответствия на противопожарные двери (при наличии);
- копию проектной документации на установку (модернизацию) лифта;
- копию Заключения по результатам оценки соответствия (при выполнении модернизации).
Копии документов заверяются подписью уполномоченного представителя монтажной организации и печатью этой организации.
Орган по сертификации хранит оригинал декларации о соответствии и комплект документов, предусмотренный настоящим приложением, в течение назначенного срока службы лифта.
(Измененная редакция, Изм. N 1, 2).
Приложение Е. (Исключено, Изм. N 1).
Приложение Ж
(обязательное)
Перечень установленных требований к лифту, подлежащих контролю при проведении технического освидетельствования
Таблица Ж.1| Общие требования безопасности, контролируемые при проведении технического освидетельствования лифта с электрическим приводом | Обозначение нормативного документа, устанавливающего соответствующее требование |
| 1 Соответствие точности автоматической остановки кабины лифта, допускающего транспортировку людей, установленным требованиям | ГОСТ Р 53780, 4.7 |
| 2 Расположение кабины и противовеса лифта в одной шахте | ГОСТ Р 53780, 5.2.2 |
| 3 Соответствие сплошного ограждения шахты установленным требованиям (для полностью огражденной шахты) | ГОСТ Р 53780, 5.2.3; проектная документация по установке лифта |
| 4 Соответствие сплошного ограждения шахты установленным требованиям (для частично огражденной шахты) | ГОСТ Р 53780, 5.2.4; проектная документация по установке лифта |
| 5 Соответствие стеклянных панелей, применяемых для ограждения шахты в доступных для людей местах, установленным требованиям | ГОСТ Р 53780, 5.2.5.2 |
| 6 Наличие ловителей на противовесе или наличие под буфером противовеса опоры, доходящей до монолитного основания, в случае нахождения под приямком лифта пространства (помещения), доступного для людей | ГОСТ Р 53780, 5.2.5.6; проектная документация по установке лифта |
| 7 Соответствие установки аварийных дверей, установленным требованиям, при расстоянии между порогами проемов дверей шахты лифта на смежных этажных площадках более 11000 мм и невозможности перехода пассажиров из кабины одного лифта в кабину соседнего лифта | ГОСТ Р 53780, 5.2.6; проектная документация по установке лифта |
| 8 Наличие решетки, соответствующей установленным требованиям, закрывающей вентиляционные отверстия в ограждении шахты лифта в местах, непосредственно доступных для людей | ГОСТ Р 53780, 5.2.7 |
| 9 Соответствие внутренней поверхности шахты лифта ниже порога двери шахты на этажной площадке установленным требованиям | ГОСТ Р 53780, 5.2.8 |
| 10 Наличие перегородок между движущимися частями различных лифтов, соответствующих установленным требованиям, в случае нахождения в одной шахте нескольких лифтов | ГОСТ Р 53780, 5.2.9 |
| 11 Соответствие высоты шахты лифта, оборудованного лебедкой с канатоведущим шкивом или барабаном трения, установленным требованиям | ГОСТ Р 53780, 5.2.10.1; проектная документация по установке лифта |
| 12 Соответствие обеспечения безопасности обслуживающего персонала, находящегося на крыше кабины лифта, оборудованного лебедкой с канатоведущим шкивом или барабаном трения, установленным требованиям | ГОСТ Р 53780, 5.2.10.1 |
| 13 Наличие электрического устройства безопасности, контролирующего приведение в действие механического устройства, обеспечивающего остановку кабины в верхней части шахты, размыкающего цепь безопасности при установке этого устройства | ГОСТ Р 53780, 5.5.4.34 |
| 14 Возможность перемещения противовеса по направляющим на расстояние не менее (0,1+0,035v) м при нахождении на полностью сжатых буферах кабины лифта, оборудованного лебедкой с канатоведущим шкивом или барабаном трения | ГОСТ Р 53780, 5.2.10.2 |
| 15 Возможность перемещения кабины по направляющим на расстояние не менее 500 мм от уровня верхнего этажа до верхнего буфера, для лифтов оборудованных лебедкой с барабаном или звездочкой | ГОСТ Р 53780, 5.2.10.3 |
| 16 Обеспечение зазора между нижней частью перекрытия шахты и установленными на крыше кабины деталями оборудования не менее 300 мм, при нахождении кабины лифта, оборудованной лебедкой с барабаном или звездочкой, на полностью сжатых верхних буферах | ГОСТ Р 53780, 5.2.10.4; проектная документация по установке лифта |
| 17 Обеспечение зазора между частями направляющих башмаков или роликов, креплений канатов, перемычки или частей вертикально-раздвижных дверей не менее 100 мм, при нахождении кабины лифта, оборудованной лебедкой с барабаном или звездочкой, на полностью сжатых верхних буферах | ГОСТ Р 53780, 5.2.10.4 |
| 18 Соответствие обеспечения безопасности обслуживающего персонала, находящегося на крыше кабины лифта, оборудованного лебедкой с барабаном или звездочкой, установленным требованиям | ГОСТ Р 53780, 5.2.10.4 |
| 19 Наличие электрического устройства безопасности, контролирующего приведение в действие механического устройства, обеспечивающего остановку кабины в верхней части шахты, размыкающего цепь безопасности при установке этого устройства | ГОСТ Р 53780, 5.5.4.34 |
| 20 Возможность перемещения кабины по направляющим на расстояние не менее 300 мм при нахождении кабины лифта, оборудованной лебедкой с барабаном или звездочкой, на полностью сжатых буферах | ГОСТ Р 53780, 5.2.10.5 |
| 21 Обеспечение возможности технического обслуживания направляющих блоков, ограничителя скорости, элементов подвески канатов и др., расположенных под верхним перекрытием шахты | ГОСТ Р 53780, 5.2.10.6 |
| 22 Наличие двери для доступа в приямок глубиной более 2500 мм | ГОСТ Р 53780, 5.2.11.2 |
| 23 Наличие стационарного устройства (лестница, скобы и др.), расположенного в пределах досягаемости из дверного проема, для доступа в приямок глубиной более 900 мм | ГОСТ Р 53780, 5.2.11.3 |
| 24 Соответствие обеспечения безопасности обслуживающего персонала, находящегося в приямке лифта, установленным требованиям | ГОСТ Р 53780, 5.2.11.4 |
| 25 Наличие электрического устройства безопасности, контролирующего приведение в действие механического устройства, обеспечивающего остановку кабины в нижней части шахты, размыкающего цепь безопасности при установке этого устройства | ГОСТ Р 53780, 5.5.4.34 |
| 26 Наличие зазора не менее 50 мм между полом приямка и башмаками, щитами под порогом кабины, элементами вертикально-раздвижных дверей, деталями ловителей, каркаса кабины, расположенными в пределах 200 мм от направляющих, при нахождении кабины на полностью сжатых буферах | ГОСТ Р 53780, 5.2.11.5 |
| 27 Наличие в шахте несамовозвратного электрического устройства безопасности (кнопки "Стоп"), размыкающего цепь безопасности от ручного воздействия | ГОСТ Р 53780, 5.2.11.6, 5.5.4.30 |
| 28 Обеспечение доступности электрического устройства безопасности (кнопки "Стоп") при открытии двери для входа в приямок и с пола приямка и соответствие его расположения установленным требованиям | ГОСТ Р 53780, 5.2.11.6 |
| 29 Отсутствие в шахте лифта оборудования и коммуникаций, не относящихся к лифту (за исключением систем пожарной и охранной сигнализации, диспетчерского контроля и систем, предназначенных для отопления и вентиляции шахты) | ГОСТ Р 53780, 5.2.12 |
| 30 Наличие стационарного электрического освещения шахты лифта, обеспечивающего освещенность не менее 50 лк в 1 м над крышей кабины и полом приямка при закрытых дверях шахты | ГОСТ Р 53780, 5.5.6.6 |
| 31 Соответствие расположения крайних аппаратов освещения шахты установленным требованиям | ГОСТ Р 53780, 5.5.6.6 |
| 32 Возможность включения освещения шахты из шахты и (или) машинного помещения | ГОСТ Р 53780, 5.2.13 |
| 33 Соответствие расположения выключателя освещения шахты установленным требованиям | ГОСТ Р 53780, 5.2.13 |
| 34 Наличие в приямке электрической розетки для подключения электрического инструмента с напряжением питания не более 254 В | ГОСТ Р 53780, 5.2.14, 5.5.6.5 |
| 35 Соответствие горизонтального расстояния между внутренней поверхностью шахты лифта и порогом, обрамлением дверного проема двери шахты и ближней створкой раздвижных дверей кабины, установленным требованиям | ГОСТ Р 53780, 5.2.15.1 |
| 36 Соответствие горизонтального расстояния между порогом кабины и порогами дверей шахты установленным требованиям | ГОСТ Р 53780, 5.2.15.2 |
| 37 Соответствие горизонтального расстояния между створками двери кабины и створками двери шахты установленным требованиям | ГОСТ Р 53780, 5.2.15.3 |
| 38 Соответствие зазоров между распашной дверью шахты и складчатой дверью кабины установленным требованиям | ГОСТ Р 53780, 5.2.15.4 |
| 39 Соответствие горизонтального расстояния между элементами кабины и противовеса установленным требованиям | ГОСТ Р 53780, 5.2.15.5 |
| 40 Наличие стационарного электрического освещения площадки перед входом в помещение, в котором размещено оборудование лифта, обеспечивающего освещенность не менее 50 лк на уровне пола | ГОСТ Р 53780, 5.5.6.8 |
| 41 Соответствие доступа в помещение для размещения оборудования лифта установленным требованиям | ГОСТ Р 53780, 5.3.2.2 |
| 42 Отсутствие оборудования и коммуникаций, не относящихся к лифту, в помещениях с размещенным оборудованием | ГОСТ Р 53780, 5.3.2.3 |
| 43 Наличие на устройстве для подвески грузоподъемных средств информации о его грузоподъемности или допустимой нагрузке (при наличии грузоподъемных средств) | ГОСТ Р 53780, 5.3.2.4 |
| 44 Соответствие сплошного ограждения машинного помещения установленным требованиям | ГОСТ Р 53780, 5.3.3.1 |
| 45 Соответствие сплошного ограждения блочного помещения установленным требованиям | ГОСТ Р 53780, 5.3.3.1 |
| 46 Соответствие пола машинного помещения установленным требованиям | ГОСТ Р 53780, 5.3.3.2 |
| 47 Соответствие пола блочного помещения установленным требованиям | ГОСТ Р 53780, 5.3.3.2 |
| 48 Соответствие двери для доступа в машинное помещение и размеров дверного проема установленным требованиям | ГОСТ Р 53780, 5.3.3.4 |
| 49 Отсутствие входа в машинное помещение через люк | ГОСТ Р 53780, 5.3.3.4 |
| 50 Соответствие двери для доступа в блочное помещение и размеров дверного проема установленным требованиям | ГОСТ Р 53780, 5.3.3.5 |
| 51 Соответствие размеров люка для доступа в блочное помещение установленным требованиям | ГОСТ Р 53780, 5.3.3.6 |
| 52 Наличие сплошной крышки люка для доступа в блочное помещение | ГОСТ Р 53780, 5.3.3.6 |
| 53 Наличие сплошной крышки люка для подачи материалов и оборудования в машинное или блочное помещение, открывающейся вверх | ГОСТ Р 53780, 5.3.3.7 |
| 54 Соответствие запирания дверей и крышек люков для доступа в машинное и блочное помещение установленным требованиям | ГОСТ Р 53780, 5.3.3.8 |
| 55 Соответствие запирания крышки люка для подачи материалов установленным требованиям | ГОСТ Р 53780, 5.3.3.8 |
| 56 Соответствие размеров машинного помещения установленным требованиям | ГОСТ Р 53780, 5.3.3.9, а) |
| 57 Соответствие размеров блочного помещения установленным требованиям | ГОСТ Р 53780, 5.3.3.9, б) |
| 58 Наличие зон обслуживания (свободных площадок) в машинном и блочном помещении и соответствие их размеров установленным требованиям | ГОСТ Р 53780, 5.3.3.9, в), г), д), е) |
| 59 Наличие в машинном или блочном помещении, пол которого имеет несколько уровней, лестницы (ступеней, пандуса), и соответствие лестницы (ступеней, пандуса) установленным требованиям | ГОСТ Р 53780, 5.3.3.10 |
| 60 Наличие перил высотой более 900 мм на лестнице (ступенях, пандусе), на верхней площадке в зоне перепада уровней, при разнице уровней пола машинного или блочного помещения | ГОСТ Р 53780, 5.3.3.10 |
| 61 Соответствие бортиков вокруг отверстий над шахтой лифтов установленным требованиям | ГОСТ Р 53780, 5.3.3.11 |
| 62 Соответствие расстояния от края отверстия до проходящих через него подвижных элементов установленным требованиям | ГОСТ Р 53780, 5.3.3.11 |
| 63 Наличие стационарного электрического освещения машинного помещения, обеспечивающего освещенность не менее 50 лк на уровне пола | ГОСТ Р 53780, 5.5.6.9 |
| 64 Наличие стационарной электрической аппаратуры в зонах размещения оборудования в машинном помещении, обеспечивающей освещенность оборудования не менее 200 лк | ГОСТ Р 53780, 5.5.6.11 |
| 65 Соответствие расположения выключателя освещения машинного помещения установленным требованиям | ГОСТ Р 53780, 5.3.3.12 |
| 66 Наличие в машинном помещении электрической розетки для подключения электрического инструмента с напряжением питания не более 254 В | ГОСТ Р 53780, 5.3.3.12, 5.5.6.5 |
| 67 Наличие стационарной электрической аппаратуры блочного помещения, обеспечивающей освещенность блока (блоков) не менее 100 лк | ГОСТ Р 53780, 5.5.6.10 |
| 68 Соответствие расположения выключателя освещения блочного помещения установленным требованиям | ГОСТ Р 53780, 5.3.3.13 |
| 69 Наличие в блочном помещении электрической розетки для подключения электрического инструмента с напряжением питания не более 254 В | ГОСТ Р 53780, 5.3.3.13, 5.5.6.5 |
| 70 Наличие в блочном помещении несамовозвратного электрического устройства безопасности (кнопки "Стоп"), размыкающего цепь безопасности от ручного воздействия, и соответствие его расположения установленным требованиям | ГОСТ Р 53780, 5.3.3.14, 5.5.4.31 |
| 71 Отсутствие прохода через машинное или блочное помещение на крышу или другие помещения здания (сооружения), не относящиеся к лифту | ГОСТ Р 53780, 5.3.3.15 |
| 72 Соответствие высоты зон обслуживания и высоты проходов к зонам обслуживания установленным требованиям | ГОСТ Р 53780, 5.3.4.2 |
| 73 Наличие свободного пространства над вращающимися частями привода и его соответствие установленным требованиям | ГОСТ Р 53780, 5.3.4.2 |
| 74 Соответствие размеров зон обслуживания (свободных площадок) для обслуживания устройств управления и механического оборудования, расположенных в шахте, установленным требованиям | ГОСТ Р 53780, 5.3.4.3, 5.3.4.4 |
| 75 Наличие защиты от несанкционированного доступа устройств управления для эвакуации пассажиров из кабины и проведения испытаний, расположенных снаружи шахты | ГОСТ Р 53780, 5.3.4.5 |
| 76 Соответствие условий обслуживания и проверки оборудования (лебедки, связанные с ней механические и электрические устройства и блоки), проводимого с крыши кабины, установленным требованиям | ГОСТ Р 53780, 5.3.4.6 |
| 77 Соответствие условий при выполнении работ по техническому обслуживанию и проверке лебедки, связанных с ней механических и электрических устройств и блоков, проводимых в приямке, установленным требованиям | ГОСТ Р 53780, 5.3.4.7 |
| 78 Наличие электрического устройства безопасности, контролирующего положение блокировочного устройства для остановки кабины, размыкающего цепь безопасности при приведении в действие этого устройства | ГОСТ Р 53780, 5.5.4.33 |
| 79 Наличие стационарной электрической аппаратуры в рабочих зонах и пространстве размещения оборудования лифта без машинного помещения в шахте (шкафа управления, лебедки, ограничителя скорости и др.), обеспечивающей освещенность оборудования не менее 200 лк на уровне зон их размещения | ГОСТ Р 53780, 5.5.6.12 |
| 80 Наличие выключателя освещения в зоне обслуживания внутри шахты | ГОСТ Р 53780, 5.3.4.9 |
| 81 Наличие в зоне обслуживания внутри шахты электрической розетки для подключения электрического инструмента с напряжением питания не более 254 В | ГОСТ Р 53780, 5.3.4.9, 5.5.6.5 |
| 82 Соответствие размещения оборудования (лебедки, связанные с ней механические и электрические устройства и блоки), расположенного снаружи шахты, установленным требованиям | ГОСТ Р 53780, 5.3.4.10 |
| 83 Наличие зоны обслуживания перед шкафом с оборудованием лифта, соответствующей установленным требованиям | ГОСТ Р 53780, 5.3.4.10 |
| 84 Наличие стационарного электрического освещения шкафа с оборудованием лифта, обеспечивающего освещенность оборудования не менее 200 лк | ГОСТ Р 53780, 5.5.6.13 |
| 85 Наличие режима "Управление из машинного помещения" в устройстве управления для проведения эвакуации и испытаний | ГОСТ Р 53780, 5.3.4.11 |
| 86 Наличие информации о достижении зоны открывания дверей в устройстве управления для проведения эвакуации и испытаний | ГОСТ Р 53780, 5.3.4.11 |
| 87 Наличие информации о направлении движения кабины в устройстве управления для проведения эвакуации и испытаний или возможность наблюдения за работой привода | ГОСТ Р 53780, 5.3.4.11 |
| 88 Соответствие размеров свободной площадки перед устройством управления для проведения эвакуации и испытаний установленным требованиям | ГОСТ Р 53780, 5.3.4.11 |
| 89 Наличие стационарного электрического освещения устройств управления для проведения эвакуации и испытаний, обеспечивающего освещенность панели не менее 100 лк | ГОСТ Р 53780, 5.5.6.14 |
| 90 Наличие двусторонней переговорной связи между пассажиром в кабине и обслуживающим персоналом, находящимся около устройств управления для проведения эвакуации и испытаний | ГОСТ Р 53780, 5.3.4.11 |
| 91 Наличие сплошных дверей в проемах стен шахты | ГОСТ Р 53780, 5.4.1.1 |
| 92 Соответствие высоты в свету проемов дверей шахты установленным требованиям | ГОСТ Р 53780, 5.4.1.4 |
| 93 Соответствие ширины в свету проемов дверей шахты установленным требованиям | ГОСТ Р 53780, 5.4.1.5 |
| 94 Соответствие наружной поверхности автоматических раздвижных дверей шахты установленным требованиям | ГОСТ Р 53780, 5.4.1.7 |
| 95 Соответствие толщины и маркировки многослойного стекла дверей шахты установленным требованиям | ГОСТ Р 53780, 5.4.1.8 |
| 96 Наличие автоматического устройства реверсирования закрывающихся дверей при воздействии или перед воздействием створок на препятствие | ГОСТ Р 53780, 5.4.1.9.1 |
| 97 Наличие информации о нахождении кабины на этаже у лифта с открывающимися вручную дверями шахты | ГОСТ Р 53780, 5.4.1.10 |
| 98 Соответствие зазоров между сомкнутыми створками дверей шахты, а также между створками и обвязкой дверного проема, между створками и порогом установленным требованиям | ГОСТ Р 53780, 5.4.1.11 |
| 99 Соответствие горизонтально-раздвижных и вертикально-раздвижных дверей шахты в закрытом положении установленным требованиям | ГОСТ Р 53780, 5.4.1.12 |
| 100 Наличие автоматических замков, запирающих двери шахты прежде, чем кабина отойдет от уровня этажной площадки на расстояние 200 мм, и исключающих отпирание дверей снаружи шахты | ГОСТ Р 53780, 5.4.1.13 |
| 101 Возможность движения кабины после перемещения запирающих элементов автоматических замков дверей шахты не менее 7 мм в ответную часть замка | ГОСТ Р 53780, 5.4.1.13.3 |
| 102 Наличие электрических устройств безопасности, контролирующих запирание автоматических замков дверей шахты, и их соответствие установленным требованиям | ГОСТ Р 53780, 5.4.1.13.3, 5.5.4.15 |
| 103 Наличие на замке таблички с указанием изготовителя и идентификационного номера | ГОСТ Р 53780, 5.4.1.13.5 |
| 104 Возможность отпирания дверей шахты снаружи специальным ключом | ГОСТ Р 53780, 5.4.1.13.6 |
| 105 Соответствие ключевины устройства для отпирания снаружи автоматического замка двери шахты установленным требованиям | ГОСТ Р 53780, 5.4.1.13.6, приложение А |
| 106 Наличие автоматического закрывания и запирания автоматических дверей шахты при отсутствии кабины в зоне отпирания дверей | ГОСТ Р 53780, 5.4.1.13.6 |
| 107 Наличие неавтоматических замков или устройств, удерживающих в закрытом положении двери шахты, закрываемые вручную | ГОСТ Р 53780, 5.4.1.13.7 |
| 108 Наличие электрических устройств безопасности, контролирующих закрытие дверей шахты, и их соответствие установленным требованиям | ГОСТ Р 53780, 5.4.1.14, 5.5.4.12, 5.5.4.16 |
| 109 Соответствие размеров в свету дверей для технического обслуживания оборудования установленным требованиям | ГОСТ Р 53780, 5.4.1.16.1 |
| 110 Соответствие размеров в свету аварийных дверей установленным требованиям | ГОСТ Р 53780, 5.4.1.16.1 |
| 111 Соответствие размеров в свету смотровых люков установленным требованиям | ГОСТ Р 53780, 5.4.1.16.1 |
| 112 Наличие сплошных аварийных дверей и смотровых люков, открывающихся наружу | ГОСТ Р 53780, 5.4.1.16.2, 5.4.1.16.4 |
| 113 Наличие замков с ключевинами, соответствующими установленным требованиям, на дверях для технического обслуживания оборудования, аварийных дверях и смотровых люках, открывающегося изнутри шахты лифта без ключа | ГОСТ Р 53780, 5.4.1.16.3 |
| 114 Наличие электрических устройств безопасности, контролирующих закрытие дверей для технического обслуживания оборудования, аварийных дверей и смотровых люков, размыкающих цепь безопасности при открытии дверей и люков | ГОСТ Р 53780, 5.4.1.16.5, 5.5.4.17 |
| 115 Соответствие высоты направляющих кабины и противовеса установленным требованиям | ГОСТ Р 53780, 5.4.2.4 |
| 116 Соответствие номинальной скорости лифта, оборудованного барабанной лебедкой или лебедкой со звездочкой, установленным требованиям | ГОСТ Р 53780, 5.4.3.3 |
| 117 Обеспечение сцепления тяговых элементов (канатов или ремней) со шкивом или барабаном трения при рабочем режиме и при проведении испытания | ГОСТ Р 53780, 5.4.3.5 |
| 118 Отсутствие подъема пустой кабины при нахождении противовеса на сжатом буфере при проведении испытания | ГОСТ Р 53780, 5.4.3.6 |
| 119 Наличие соответствующего количества ремней для передачи крутящего момента от электродвигателя главного привода | ГОСТ Р 53780, 5.4.3.7 |
| 120 Наличие электрического устройства безопасности, контролирующего натяжение ремней для передачи крутящего момента от электродвигателя главного привода, размыкающего цепь безопасности при ослаблении натяжения ремней | ГОСТ Р 53780, 5.4.3.7, 5.5.4.14 |
| 121 Наличие ограждения от случайного прикосновения вращающихся элементов лебедки, которые могут быть источником опасности | ГОСТ Р 53780, 5.4.3.8, 5.4.9.10 |
| 122 Наличие окраски (частичной окраски) в желтый цвет не огражденных вращающихся элементов лебедки | ГОСТ Р 53780, 5.4.3.8 |
| 123 Наличие мер по предотвращению спадания канатов, ремней или цепей с приводных и направляющих элементов | ГОСТ Р 53780, 5.4.3.9, 5.4.9.10 |
| 124 Наличие возможности перемещения кабины при отключении основного источника электропитания лифта | ГОСТ Р 53780, 5.4.3.10 |
| 125 Наличие электрического устройства безопасности (при применении съемного штурвала), контролирующего положение съемного штурвала и размыкающего цепь безопасности не позднее установки штурвала на лебедку | ГОСТ Р 53780, 5.4.3.10, а); 5.5.4.28 |
| 126 Наличие возможности контроля из машинного помещения нахождения кабины в зоне отпирания дверей при перемещении кабины штурвалом | ГОСТ Р 53780, 5.4.3.10, а) |
| 127 Наличие дополнительного (резервного) источника питания (аккумулятора) для электрического растормаживания при перемещении кабины за счет разницы фактических масс кабины и противовеса | ГОСТ Р 53780, 5.4.3.10, в) |
| 128 Наличие не менее полутора запасных витков каждого закрепленного на барабане каната, при нахождении кабины (противовеса) на полностью сжатых буферах, при применении барабанной лебедки | ГОСТ Р 53780, 5.4.3.11, б) |
| 129 Наличие автоматически действующего механического тормоза лебедки нормально замкнутого типа, соответствующего установленным требованиям | ГОСТ Р 53780, 5.4.3.12 |
| 130 Соответствие номинальной грузоподъемности лифта самостоятельного пользования установленным требованиям | ГОСТ Р 53780, 8.1 |
| 131 Соответствие вместимости кабины установленным требованиям | ГОСТ Р 53780, 8.2 |
| 132 Наличие не менее двух параллельно включенных источников света рабочего освещения кабины | ГОСТ Р 53780, 5.5.6.15.1 |
| 133 Наличие аварийного источника питания освещения кабины с автоматической подзарядкой, способного запитывать как минимум одну лампу мощностью 1 Вт или светодиодные источники света в течение 1 ч | ГОСТ Р 53780, 5.5.6.15.2 |
| 134 Соответствие многослойного стекла для ограждения кабины установленным требованиям | ГОСТ Р 53780, 5.4.4.2.3 |
| 135 Наличие у стены кабины со стеклом, установленным ниже 1100 мм от уровня пола, поручня, установленного на высоте 900-1100 мм и закрепленного независимо от стекла | ГОСТ Р 53780, 5.4.4.2.3 |
| 136 Наличие на крыше кабины, на которую возможен выход персонала, свободной площадки для персонала с площадью не менее 0,12 м с размером меньшей стороны не менее 250 мм | ГОСТ Р 53780, 5.4.4.3.2 |
| 137 Наличие ограждения на крыше кабины со стороны зазора между краем крыши кабины и внутренней поверхностью ограждения шахты, превышающего 300 мм | ГОСТ Р 53780, 5.4.4.3.3 |
| 138 Наличие в конструкции ограждения на крыше кабины поручня, обшивки понизу и поперечины, расположенной на половине высоты ограждения | ГОСТ Р 53780, 5.4.4.3.3.1 |
| 139 Соответствие высоты ограждения на крыше кабины установленным требованиям | ГОСТ Р 53780, 5.4.4.3.3.1 |
| 140 Наличие электрического устройства безопасности (при применении складного ограждения на крыше кабины), контролирующего положение складного ограждения на крыше кабины и размыкающего цепь безопасности при установке ограждения | ГОСТ Р 53780, 5.4.4.3.3.1, 5.5.4.35 |
| 141 Соответствие зазора между наружным краем поручня ограждения на крыше кабины и оборудованием, расположенным в шахте, установленным требованиям | ГОСТ Р 53780, 5.4.4.3.3.2 |
| 142 Наличие на крыше кабины устройства остановки лифта, размыкающего цепь безопасности при ручном воздействии | ГОСТ Р 53780, 5.4.4.4, 5.5.4.22 |
| 143 Наличие на крыше кабины электрической розетки для подключения электрического инструмента с напряжением питания не более 254 В | ГОСТ Р 53780, 5.4.4.4, 5.5.6.5 |
| 144 Наличие вертикального щита на всю ширину дверного проема высотой не менее 750 мм, установленного заподлицо с передней кромкой порога | ГОСТ Р 53780, 5.4.4.5 |
| 145 Наличие электрического устройства безопасности (при применении складного щита под порогом кабины), контролирующего положение складного щита и размыкающего цепь безопасности при невозврате щита в рабочее состояние | ГОСТ Р 53780, 5.5.4.36 |
| 146 Соответствие высоты кабины установленным требованиям | ГОСТ Р 53780, 5.4.4.6 |
| 147 Соответствие высоты в свету входного проема кабины лифтов, допускающих транспортирование людей, установленным требованиям | ГОСТ Р 53780, 5.4.4.7 |
| 148 Наличие сплошной двери кабины | ГОСТ Р 53780, 5.4.4.8 |
| 149 Наличие вертикально-раздвижной двери кабины грузовых лифтов, в которых запрещено транспортирование людей, и ее соответствие установленным требованиям | ГОСТ Р 53780, 5.4.4.8, а) |
| 150 Наличие раздвижной решетчатой двери кабины грузовых лифтов, в которых запрещено транспортирование людей или которые управляются из кабины лифтером (проводником), и ее соответствие установленным требованиям | ГОСТ Р 53780, 5.4.4.8, б) |
| 151 Соответствие зазора между створками, между обвязкой дверного проема и створками или между створками и порогом при закрытой двери кабины установленным требованиям | ГОСТ Р 53780, 5.4.4.8.1 |
| 152 Наличие смотровых отверстий двери кабины, если двери шахты оборудованы смотровыми отверстиями, и соответствие их расположения установленным требованиям | ГОСТ Р 53780, 5.4.4.8.3 |
| 153 Соответствие толщины и маркировки многослойного стекла двери кабины установленным требованиям | ГОСТ Р 53780, 5.4.4.8.5 |
| 154 Наличие электрического устройства безопасности, контролирующего закрытие двери кабины и предотвращающего движение кабины при открытых дверях | ГОСТ Р 53780, 5.4.4.8.9, 5.5.4.18 |
| 155 Наличие автоматического замка, запирающего дверь кабины прежде, чем кабина отойдет от уровня этажной площадки на расстояние 200 мм | ГОСТ Р 53780, 5.4.4.8.10 |
| 156 Наличие устройства, запирающего дверь кабины одновременно с закрытием двери кабины | ГОСТ Р 53780, 5.4.4.8.10 |
| 157 Соответствие аварийного люка кабины установленным требованиям | ГОСТ Р 53780, 5.4.4.9 |
| 158 Соответствие аварийной двери кабины установленным требованиям | ГОСТ Р 53780, 5.4.4.10 |
| 159 Наличие электрического устройства безопасности, контролирующего запирание аварийной двери кабины, размыкающего цепь безопасности при отпирании аварийной двери кабины | ГОСТ Р 53780, 5.4.4.11, 5.5.4.19 |
| 160 Наличие электрического устройства безопасности, контролирующего запирание аварийного люка кабины, размыкающего цепь безопасности при отпирании аварийного люка кабины | ГОСТ Р 53780, 5.4.4.11, 5.5.4.19 |
| 161 Наличие вентиляционных отверстий в верхней и нижней частях кабины | ГОСТ Р 53780, 5.4.4.12 |
| 162 Наличие башмаков кабины, конструкция которых исключает выход кабины из направляющих | ГОСТ Р 53780, 5.4.4.14 |
| 163 Наличие сведений (грузоподъемность, вместимость, изготовитель лифта, заводской номер) в кабине лифта | ГОСТ Р 53780, 5.4.4.15 |
| 164 Исключение самопроизвольного смещения грузов противовеса в горизонтальной и вертикальной плоскостях | ГОСТ Р 53780, 5.4.5.2 |
| 165 Наличие башмаков противовеса, конструкция которых исключает выход противовеса из направляющих | ГОСТ Р 53780, 5.4.5.3 |
| 166 Наличие ловителей плавного торможения кабины лифта с номинальной скоростью более 0,63 м/с | ГОСТ Р 53780, 5.4.6.4 |
| 167 Наличие ловителей резкого торможения кабины лифта с номинальной скоростью не более 0,63 м/с | ГОСТ Р 53780, 5.4.6.4 |
| 168 Наличие ловителей плавного торможения противовеса лифта с номинальной скоростью более 1,0 м/с (для противовеса, оборудованного ловителями) | ГОСТ Р 53780, 5.4.6.5 |
| 169 Наличие электрического устройства безопасности, контролирующего срабатывание ловителей кабины, размыкающего цепь безопасности до или при срабатывании ловителей | ГОСТ Р 53780, 5.5.4.23, 5.4.6.8 |
| 170 Соответствие диаметра каната, приводящего в действие ограничитель скорости, установленным требованиям | ГОСТ Р 53780, 5.4.7.5 |
| 171 Наличие на ограничителе скорости указания о направлении вращения, соответствующего включению ловителей | ГОСТ Р 53780, 5.4.7.6 |
| 172 Наличие электрического устройства безопасности, контролирующего обрыв или превышение регламентированной вытяжки каната, приводящего в действие ограничитель скорости и размыкающего цепь безопасности при его срабатывании | ГОСТ Р 53780, 5.4.7.5.4, 5.5.4.25 |
| 173 Наличие электрического устройства безопасности, контролирующего срабатывание ограничителя скорости и размыкающего цепь безопасности до достижения движущейся вниз кабиной скорости, при которой происходит срабатывание ограничителя скорости (или при скорости срабатывания ограничителя скорости у лифтов с номинальной скоростью не более 1,0 м/с) | ГОСТ Р 53780, 5.4.7.7, 5.5.4.20 |
| 174 Наличие электрического устройства безопасности, предотвращающего пуск лифта до приведения ограничителя скорости в исходное положение, для лифта, у которого ограничитель скорости не возвращается автоматически в исходное состояние после снятия с ловителей | ГОСТ Р 53780, 5.4.7.8, 5.5.4.21 |
| 175 Соответствие ограничителя скорости, расположенного в шахте, установленным требованиям | ГОСТ Р 53780, 5.4.7.9 |
| 176 Наличие таблички со сведениями (изготовитель, идентификационный номер, скорость срабатывания ограничителя скорости) на ограничителе скорости | ГОСТ Р 53780, 5.4.7.11 |
| 177 Наличие буферов, ограничивающих перемещение кабины и противовеса вниз | ГОСТ Р 53780, 5.4.8.1 |
| 178 Наличие буферов, ограничивающих перемещение кабины вверх у лифта, оборудованного барабанной лебедкой или лебедкой со звездочкой | ГОСТ Р 53780, 5.4.8.1 |
| 179 Наличие электрического устройства безопасности, контролирующего автоматическое возвращение буфера энергорассеивающего типа в исходное положение и размыкающего цепь безопасности, если буфер не возвращается в исходное положение более чем на 50 мм | ГОСТ Р 53780, 5.4.8.4.3, 5.5.4.29 |
| 180 Наличие возможности контроля уровня жидкости в гидравлическом буфере | ГОСТ Р 53780, 5.4.8.4.4 |
| 181 Наличие таблички со сведениями (изготовитель, идентификационный номер буфера) на буфере | ГОСТ Р 53780, 5.4.8.4.6 |
| 182 Наличие не менее двух тяговых элементов одинаковой конструкции, имеющих одинаковые размеры и характеристики | ГОСТ Р 53780, 5.4.9.2, 5.4.9.4 |
| 183 Соответствие номинального диаметра стальных проволочных канатов установленным требованиям | ГОСТ Р 53780, 5.4.9.6.1 |
| 184 Соответствие коэффициента запаса прочности тяговых канатов, указанного в паспорте лифта, установленным требованиям | ГОСТ Р 53780, 5.4.9.6.3 |
| 185 Соответствие крепления каната к барабану лебедки установленным требованиям | ГОСТ Р 53780, 5.4.9.6.5 |
| 186 Соответствие коэффициента запаса прочности тяговых цепей, указанного в паспорте лифта, установленным требованиям | ГОСТ Р 53780, 5.4.9.7 |
| 187 Наличие автоматического устройства для уменьшения разности натяжения в отдельных тяговых элементах | ГОСТ Р 53780, 5.4.9.8.1 |
| 188 Наличие автоматического устройства для уменьшения разности натяжения в отдельных тяговых цепях, как со стороны кабины, так и со стороны уравновешивающего груза | ГОСТ Р 53780, 5.4.9.8.1 |
| 189 Наличие электрического устройства безопасности, размыкающего цепь безопасности при относительном перемещении (ослаблении) тяговых элементов сверх значения, допустимого автоматическим устройством для уменьшения разности натяжения в отдельных тяговых элементах, и при обрыве одного или всех тяговых элементов | ГОСТ Р 53780, 5.4.9.8.3, 5.5.4.24 |
| 190 Наличие электрического устройства безопасности, контролирующего натяжение уравновешивающих канатов и размыкающего цепь безопасности при ослаблении натяжения | ГОСТ Р 53780, 5.4.9.9, в); 5.5.4.26 |
| 191 Наличие устройства, ограничивающего подскок натяжного устройства уравновешивающих канатов у лифта, номинальная скорость которого превышает 3,5 м/с | ГОСТ Р 53780, 5.4.9.9 |
| 192 Наличие электрического устройства безопасности, контролирующего подскок натяжного устройства уравновешивающих канатов и размыкающего цепь безопасности при срабатывании этого устройства | ГОСТ Р 53780, 5.4.9.9, в); 5.5.4.27 |
| 193 Соответствие защитных мер для канатоведущих шкивов, блоков и звездочек, установленным требованиям | ГОСТ Р 53780, 5.4.9.10 |
| 194 Наличие устройства (вводное устройство, автоматический выключатель и др.) с ручным приводом, прерывающего питание всех электрических цепей, за исключением цепей освещения помещений для размещения оборудования лифта, шахты, кабины, розеток для подключения электроинструмента, вентиляции кабины, двусторонней переговорной связи, аварийной сигнализации, вызова обслуживающего персонала из кабины | ГОСТ Р 53780, 5.5.1.2, 5.5.1.4, а)-и) |
| 195 Наличие возможности блокировки устройства с ручным приводом для предотвращения непреднамеренного включения | ГОСТ Р 53780, 5.5.1.2 |
| 196 Наличие отдельных выключателей для цепей освещения помещений для размещения оборудования лифта, шахты, кабины, розеток для подключения электроинструмента | ГОСТ Р 53780, 5.5.1.4 |
| 197 Наличие не менее двух питающих линий при расположении в общем машинном помещении оборудования нескольких лифтов | ГОСТ Р 53780, 5.5.1.5 |
| 198 Наличие несамовозвратных устройств в каждом из помещений, при размещении электрооборудования лифта в разных помещениях | ГОСТ Р 53780, 5.5.1.6 |
| 199 Соответствие напряжения силовых электрических цепей установленным требованиям | ГОСТ Р 53780, 5.5.1.8 |
| 200 Соответствие напряжения питания цепей управления, подключения ремонтного инструмента, освещения и сигнализации установленным требованиям | ГОСТ Р 53780, 5.5.1.8 |
| 201 Соответствие напряжения электрических цепей при применении переносных ламп установленным требованиям | ГОСТ Р 53780, 5.5.1.9 |
| 202 Отсутствие в заземляющих проводниках предохранителей, контактов и других размыкающих элементов, в том числе бесконтактных | ГОСТ Р 53780, 5.5.1.14 |
| 203 Наличие защиты от случайного прикосновения токоведущих частей выключателей и устройств с ручным приводом, выключателей, устанавливаемых в шахте, помещении для размещения оборудования, выключателей дистанционного отключения электрических цепей с напряжением на них более 42 В переменного тока или 60 В постоянного тока | ГОСТ Р 53780, 5.5.1.15 |
| 204 Наличие символов или надписей "Вкл.", "Откл.", соответственно обозначающих положение выключателей и устройств с ручным приводом, выключателей, устанавливаемых в шахте, помещении для размещения оборудования, выключателей дистанционного отключения | ГОСТ Р 53780, 5.5.1.15 |
| 205 Наличие возможности движения кабины с пониженной скоростью не более 0,63 м/с у лифта с номинальной скоростью более 0,63 м/с | ГОСТ Р 53780, 5.5.2.1, б) |
| 206 Наличие на посту управления в кабине лифта с автоматическими дверями кнопки "Двери", нажатие на которую приводит к открыванию дверей при нахождении неподвижной кабины на уровне этажной площадки | ГОСТ Р 53780, 5.5.3.3 |
| 207 Исключение выполнения новой команды управления, кроме команды "Стоп", до выполнения ранее поданной команды | ГОСТ Р 53780, 5.5.3.5 |
| 208 Обеспечение системой управления лифта с номинальной скоростью не менее 1,6 м/с предварительного замедления перед крайними этажными площадками, дублирующего действие рабочего замедления кабины | ГОСТ Р 53780, 5.5.3.6 |
| 209 Наличие в системе управления лифта, в котором применены буфера с уменьшенным ходом плунжера, устройства ограничения скорости кабины при ее подходе к верхней и нижней этажным площадкам | ГОСТ Р 53780, 5.5.3.7 |
| 210 Наличие возможности отключения одного или нескольких лифтов с групповым управлением без нарушения нормальной работы остальных лифтов, входящих в группу | ГОСТ Р 53780, 5.5.3.8, а) |
| 211 Наличие возможности полного снятия напряжения со всего электрооборудования, отключенного для ремонта лифта с групповым управлением или выполнение установленных требований | ГОСТ Р 53780, 5.5.3.8, б) |
| 212 Наличие устройства для защиты электродвигателя от перегрузки, прекращающего подачу питания на двигатель и возвращаемого в исходное положение вручную | ГОСТ Р 53780, 5.5.3.9 |
| 213 Соответствие функционирования лифта в режиме "Управление из машинного помещения" установленным требованиям | ГОСТ Р 53780, 5.5.3.12 |
| 214 Соответствие функционирования лифта в режиме "Ревизия" установленным требованиям | ГОСТ Р 53780, 5.5.3.13 |
| 215 Наличие устройства, контролирующего перегрузку кабины и предотвращающего движение кабины при размещении в ней груза массой, превышающей номинальную грузоподъемность лифта на 10%, но не менее чем на 75 кг | ГОСТ Р 53780, 5.5.3.15 |
| 216 Наличие звукового и (или) светового сигнального устройства, сигнализирующего о перегрузке кабины лифта | ГОСТ Р 53780, 5.5.3.15 |
| 217 Наличие средств для подключения к двусторонней переговорной связи с помещением для обслуживающего персонала на крыше кабины и в кабине | ГОСТ Р 53780, 5.5.3.16 |
| 218 Наличие ремонтной телефонной или другой двусторонней связи и ее соответствие установленным требованиям | ГОСТ Р 53780, 5.5.3.17 |
| 219 Наличие устройства, размыкающего цепь безопасности при несанкционированном открытии дверей шахты в режиме "Нормальная работа" у пассажирского лифта | ГОСТ Р 53780, 5.5.3.20 |
220 Наличие возможности снятия сигнала с системы управления лифта, предназначенного для подключения к устройству диспетчерского контроля, с целью передачи от лифта к устройству диспетчерского контроля следующей информации:
| ГОСТ Р 53780, 5.5.3.21 |
| 221 Наличие режима "Пожарная опасность" у пассажирского лифта с автоматическим приводом дверей, обеспечивающего независимо от загрузки и направления движения возвращение ее на основной посадочный этаж здания, открытие и удержание в открытом состоянии дверей кабины и шахты, при включении лифта в этот режим | ГОСТ Р 53780, 5.5.3.22 |
| 222 Остановка или предотвращение пуска электродвигателя главного привода при срабатывании электрического устройства безопасности | ГОСТ Р 53780, 5.5.4.1 |
| 223 Срабатывание контактов безопасности электрических устройств безопасности происходит за счет их принудительного размыкания | ГОСТ Р 53780, 5.5.4.5 |
| 224 Срабатывание концевого выключателя происходит при переходе кабиной лифта уровня крайней нижней этажной площадки, но до соприкосновения кабины с ее буферами (упорами) | ГОСТ Р 53780, 5.5.4.8, а) |
| 225 Срабатывание концевого выключателя происходит при переходе кабиной лифта, оборудованного в нижней части шахты буфером (упором) для взаимодействия с противовесом, уровня крайней верхней этажной площадки, но до соприкосновения противовеса с этим буфером (упором) | ГОСТ Р 53780, 5.5.4.8, б) |
| 226 Срабатывание концевого выключателя происходит при переходе кабиной лифта, оборудованного уравновешивающим грузом, уровня крайней верхней этажной площадки не более чем на 200 мм | ГОСТ Р 53780, 5.5.4.8, в) |
| 227 Срабатывание концевого выключателя происходит при переходе кабиной лифта, с размещенным на кабине буфером, до соприкосновения буфера с соответствующим упором в шахте | ГОСТ Р 53780, 5.5.4.8, в) |
| 228 Контакты безопасности концевых выключателей разомкнуты при нахождении кабины (противовеса) на буферах | ГОСТ Р 53780, 5.5.4.8 |
| 229 Отсутствие возможности автоматического возвращения в режим "Нормальная работа" после срабатывания концевых выключателей | ГОСТ Р 53780, 5.5.4.8 |
Таблица Ж.2
| Общие требования безопасности, контролируемые при проведении технического освидетельствования лифта с гидравлическим приводом | Обозначение нормативного документа, устанавливающего соответствующее требование |
| 1 Соответствие точности автоматической остановки кабины лифта, допускающего транспортировку людей, установленным требованиям | ГОСТ Р 53780, 4.7 |
| 2 Расположение кабины и гидроцилиндров лифта в одной шахте | ГОСТ Р 53780, 6.1; проектная документация по установке лифта |
| 3 Соответствие сплошного ограждения шахты установленным требованиям (для полностью огражденной шахты) | ГОСТ Р 53780, 5.2.3; проектная документация по установке лифта |
| 4 Соответствие сплошного ограждения шахты установленным требованиям (для частично огражденной шахты) | ГОСТ Р 53780, 5.2.4; проектная документация по установке лифта |
| 5 Соответствие стеклянных панелей, применяемых для ограждения шахты в доступных для людей местах, установленным требованиям | ГОСТ Р 53780, 5.2.5.2 |
| 6 Наличие ловителей на уравновешивающем устройстве кабины или наличие под зоной движения уравновешивающего устройства опоры, доходящей до монолитного основания, в случае нахождения под приямком лифта пространства (помещения), доступного для людей | ГОСТ Р 53780, 5.2.5.6; проектная документация по установке лифта |
| 7 Соответствие установки аварийных дверей установленным требованиям при расстоянии между порогами проемов дверей шахты лифта на смежных этажных площадках более 11000 мм и невозможности перехода пассажиров из кабины одного лифта в кабину соседнего лифта | ГОСТ Р 53780, 5.2.6; проектная документация по установке лифта |
| 8 Наличие решетки, соответствующей установленным требованиям, закрывающей вентиляционные отверстия в ограждении шахты лифта в местах, непосредственно доступных для людей | ГОСТ Р 53780, 5.2.7 |
| 9 Соответствие внутренней поверхности шахты лифта ниже порога двери шахты на этажной площадке установленным требованиям | ГОСТ Р 53780, 5.2.8 |
| 10 Наличие перегородок между движущимися частями различных лифтов, соответствующих установленным требованиям, в случае нахождения в одной шахте нескольких лифтов | ГОСТ Р 53780, 5.2.9 |
| 11 Соответствие высоты шахты лифта установленным требованиям | ГОСТ Р 53780, 6.2.2; проектная документация по установке лифта |
| 12 Соответствие обеспечения безопасности обслуживающего персонала, находящегося на крыше кабины лифта, установленным требованиям | ГОСТ Р 53780, 6.2.3 |
| 13 Наличие электрического устройства безопасности, контролирующего приведение в действие механического устройства, обеспечивающего остановку кабины в верхней части шахты, размыкающего цепь безопасности при установке этого устройства | ГОСТ Р 53780, 5.5.4.34 |
| 14 Наличие под верхним перекрытием шахты устройства для подвески грузоподъемного средства с указанной на нем или рядом с ним грузоподъемностью или допустимой нагрузкой | ГОСТ Р 53780, 6.2.5; проектная документация по установке лифта |
| 15 Возможность перемещения уравновешивающего устройства кабины по направляющим на расстояние не менее 100 мм при нахождении кабины лифта в самом верхнем и нижних положениях, определяемых полностью сжатым упором гидроцилиндра | ГОСТ Р 53780, 6.2.8 |
| 16 Обеспечение возможности технического обслуживания направляющих блоков, ограничителя скорости, элементов подвески канатов и др., расположенных под верхним перекрытием шахты | ГОСТ Р 53780, 6.2.4 |
| 17 Обеспечение безопасного доступа обслуживающего персонала в приямок | ГОСТ Р 53780, 5.2.11.2 |
| 18 Наличие двери для доступа в приямок глубиной более 2500 мм | ГОСТ Р 53780, 5.2.11.2 |
| 19 Наличие стационарного устройства (лестница, скобы и др.), расположенного в пределах досягаемости из дверного проема, для доступа в приямок глубиной более 900 мм | ГОСТ Р 53780, 5.2.11.3 |
| 20 Соответствие обеспечения безопасности обслуживающего персонала, находящегося в приямке лифта | ГОСТ Р 53780, 6.2.7 |
| 21 Наличие электрического устройства безопасности, контролирующего приведение в действие механического устройства, обеспечивающего остановку кабины в нижней части шахты, размыкающего цепь безопасности при установке этого устройства | ГОСТ Р 53780, 5.5.4.34 |
| 22 Наличие зазора не менее 50 мм между полом приямка и башмаками, щитами под порогом кабины, элементами вертикально-раздвижных дверей, деталями ловителей, каркаса кабины, расположенными в пределах 200 мм от направляющих, при нахождении кабины на полностью сжатых буферах | ГОСТ Р 53780, 5.2.11.5 |
| 23 Наличие в шахте несамовозвратного электрического устройства безопасности (кнопки "Стоп"), размыкающего цепь безопасности от ручного воздействия | ГОСТ Р 53780, 5.2.11.6, 5.5.4.30 |
| 24 Обеспечение доступности электрического устройства безопасности (кнопки "Стоп") при открытии двери для входа в приямок и с пола приямка и соответствие его расположения установленным требованиям | ГОСТ Р 53780, 5.2.11.6 |
| 25 Отсутствие в шахте лифта оборудования и коммуникаций, не относящихся к лифту (за исключением систем пожарной и охранной сигнализации, диспетчерского контроля и систем, предназначенных для отопления и вентиляции шахты) | ГОСТ Р 53780, 5.2.12 |
| 26 Наличие стационарного электрического освещения шахты лифта, обеспечивающего освещенность не менее 50 лк в 1 м над крышей кабины и полом приямка при закрытых дверях шахты | ГОСТ Р 53780, 5.5.6.6 |
| 27 Соответствие расположения крайних аппаратов освещения шахты установленным требованиям | ГОСТ Р 53780, 5.5.6.6 |
| 28 Возможность включения освещения шахты из шахты и (или) машинного помещения | ГОСТ Р 53780, 5.2.13 |
| 29 Соответствие расположения выключателя освещения шахты установленным требованиям | ГОСТ Р 53780, 5.2.13 |
| 30 Наличие в приямке электрической розетки для подключения электрического инструмента с напряжением питания не более 254 В | ГОСТ Р 53780, 5.2.14, 5.5.6.5 |
| 31 Соответствие горизонтального расстояния между внутренней поверхностью шахты лифта и порогом, обрамлением дверного проема двери шахты и ближней створкой раздвижных дверей кабины установленным требованиям | ГОСТ Р 53780, 5.2.15.1 |
| 32 Соответствие горизонтального расстояния между порогом кабины и порогами дверей шахты установленным требованиям | ГОСТ Р 53780, 5.2.15.2 |
| 33 Соответствие горизонтального расстояния между створками двери кабины и створками двери шахты установленным требованиям | ГОСТ Р 53780, 5.2.15.3 |
| 34 Соответствие зазоров между распашной дверью шахты и складчатой дверью кабины установленным требованиям | ГОСТ Р 53780, 5.2.15.4 |
| 35 Соответствие горизонтального расстояния между элементами кабины и уравновешивающего устройства установленным требованиям | ГОСТ Р 53780, 5.2.15.5 |
| 36 Обеспечение недоступности непосредственно для пользователей и посторонних лиц оборудования лифта | ГОСТ Р 53780, 6.3 |
| 37 Соответствие размещения гидроагрегата, гидравлических и электрических устройств у гидравлического лифта, не имеющего машинного помещения, установленным требованиям | ГОСТ Р 53780, 6.3 |
| 38 Соответствие размещения гидравлических труб и электрических кабелей, соединяющих машинное помещение с шахтой лифта, установленным требованиям (в случае, если машинное помещение не прилегает к шахте) | ГОСТ Р 53780, 6.3 |
| 39 Наличие в машинном помещении зоны обслуживания и соответствие ее размеров установленным требованиям | ГОСТ Р 53780, 6.3 |
| 40 Наличие стационарного электрического освещения площадки перед входом в помещение, в котором размещено оборудование лифта, обеспечивающего освещенность не менее 50 лк на уровне пола | ГОСТ Р 53780, 5.5.6.8 |
| 41 Соответствие доступа в помещение для размещения оборудования лифта установленным требованиям | ГОСТ Р 53780, 5.3.2.2 |
| 42 Отсутствие оборудования и коммуникаций, не относящихся к лифту, в помещениях с размещенным оборудованием | ГОСТ Р 53780, 5.3.2.3 |
| 43 Наличие на устройстве для подвески грузоподъемных средств информации о его грузоподъемности или допустимой нагрузке (при наличии грузоподъемных средств) | ГОСТ Р 53780, 5.3.2.4 |
| 44 Соответствие сплошного ограждения машинного помещения установленным требованиям | ГОСТ Р 53780, 5.3.3.1 |
| 45 Соответствие пола машинного помещения установленным требованиям | ГОСТ Р 53780, 5.3.3.2 |
| 46 Соответствие двери для доступа в машинное помещение и размеров дверного проема установленным требованиям | ГОСТ Р 53780, 5.3.3.4 |
| 47 Отсутствие входа в машинное помещение через люк | ГОСТ Р 53780, 5.3.3.4 |
| 48 Наличие сплошной крышки люка для подачи материалов и оборудования в машинное помещение, открывающейся вверх | ГОСТ Р 53780, 5.3.3.7 |
| 49 Соответствие запирания двери и крышки люка для доступа в машинное помещение установленным требованиям | ГОСТ Р 53780, 5.3.3.8 |
| 50 Соответствие запирания крышки люка для подачи материалов установленным требованиям | ГОСТ Р 53780, 5.3.3.8 |
| 51 Соответствие размеров машинного помещения установленным требованиям | ГОСТ Р 53780, 5.3.3.9, а) |
| 52 Наличие зон обслуживания (свободных площадок) в машинном помещении и соответствие их размеров установленным требованиям | ГОСТ Р 53780, 5.3.3.9, в), г), д) |
| 53 Наличие в машинном помещении, пол которого имеет несколько уровней, лестницы (ступеней, пандуса), и соответствие лестницы (ступеней, пандуса) установленным требованиям | ГОСТ Р 53780, 5.3.3.10 |
| 54 Наличие перил высотой более 900 мм на лестнице (ступенях, пандусе), на верхней площадке в зоне перепада уровней, при разнице уровней пола машинного помещения | ГОСТ Р 53780, 5.3.3.10 |
| 55 Наличие стационарного электрического освещения машинного помещения, обеспечивающего освещенность не менее 50 лк на уровне пола | ГОСТ Р 53780, 5.5.6.9 |
| 56 Наличие стационарной электрической аппаратуры в зонах размещения оборудования в машинном помещении, обеспечивающей освещенность оборудования не менее 200 лк | ГОСТ Р 53780, 5.5.6.11 |
| 57 Соответствие расположения выключателя освещения машинного помещения установленным требованиям | ГОСТ Р 53780, 5.3.3.12 |
| 58 Наличие в машинном помещении электрической розетки для подключения электрического инструмента с напряжением питания не более 254 В | ГОСТ Р 53780, 5.3.3.12, 5.5.6.5 |
| 59 Отсутствие прохода через машинное помещение на крышу или другие помещения здания (сооружения), не относящиеся к лифту | ГОСТ Р 53780, 5.3.3.15 |
| 60 Соответствие высоты зон обслуживания и высоты проходов к зонам обслуживания установленным требованиям | ГОСТ Р 53780, 5.3.4.2 |
| 61 Соответствие размеров зон обслуживания (свободных площадок) для обслуживания устройств управления и механического оборудования, расположенных в шахте, установленным требованиям | ГОСТ Р 53780, 5.3.4.3, 5.3.4.4 |
| 62 Наличие защиты от несанкционированного доступа устройств управления для эвакуации пассажиров из кабины и проведения испытаний, расположенных снаружи шахты | ГОСТ Р 53780, 5.3.4.5 |
| 63 Наличие стационарной электрической аппаратуры в рабочих зонах и пространстве размещения оборудования лифта без машинного помещения в шахте (шкафа управления, ограничителя скорости и др.), обеспечивающей освещенность оборудования не менее 200 лк на уровне зон их размещения | ГОСТ Р 53780, 5.5.6.12 |
| 64 Наличие выключателя освещения в зоне обслуживания внутри шахты | ГОСТ Р 53780, 5.3.4.9 |
| 65 Наличие в зоне обслуживания внутри шахты электрической розетки для подключения электрического инструмента с напряжением питания не более 254 В | ГОСТ Р 53780, 5.3.4.9, 5.5.6.5 |
| 66 Наличие режима "Управление из машинного помещения" в устройстве управления для проведения эвакуации и испытаний | ГОСТ Р 53780, 5.3.4.11 |
| 67 Наличие информации о достижении зоны открывания дверей в устройстве управления для проведения эвакуации и испытаний | ГОСТ Р 53780, 5.3.4.11 |
| 68 Наличие информации о направлении движения кабины в устройстве управления для проведения эвакуации и испытаний или возможность наблюдения за работой привода | ГОСТ Р 53780, 5.3.4.11 |
| 69 Соответствие размеров свободной площадки перед устройством управления для проведения эвакуации и испытаний установленным требованиям | ГОСТ Р 53780, 5.3.4.11 |
| 70 Наличие стационарного электрического освещения устройств управления для проведения эвакуации и испытаний, обеспечивающего освещенность панели не менее 100 лк | ГОСТ Р 53780, 5.5.6.14 |
| 71 Наличие двусторонней переговорной связи между пассажиром в кабине и обслуживающим персоналом, находящимся около устройств управления для проведения эвакуации и испытаний | ГОСТ Р 53780, 5.3.4.11 |
| 72 Наличие сплошных дверей в проемах стен шахты | ГОСТ Р 53780, 5.4.1.1 |
| 73 Соответствие высоты в свету проемов дверей шахты установленным требованиям | ГОСТ Р 53780, 5.4.1.4 |
| 74 Соответствие ширины в свету проемов дверей шахты установленным требованиям | ГОСТ Р 53780, 5.4.1.5 |
| 75 Соответствие наружной поверхности автоматических раздвижных дверей шахты установленным требованиям | ГОСТ Р 53780, 5.4.1.7 |
| 76 Соответствие толщины и маркировки многослойного стекла дверей шахты установленным требованиям | ГОСТ Р 53780, 5.4.1.8 |
| 77 Наличие автоматического устройства реверсирования закрывающихся дверей при воздействии или перед воздействием створок на препятствие | ГОСТ Р 53780, 5.4.1.9.1 |
| 78 Наличие информации о нахождении кабины на этаже | ГОСТ Р 53780, 5.4.1.10 |
| 79 Соответствие зазоров между сомкнутыми створками дверей шахты, а также между створками и обвязкой дверного проема, между створками и порогом установленным требованиям | ГОСТ Р 53780, 5.4.1.11 |
| 80 Соответствие горизонтально-раздвижных и вертикально-раздвижных дверей шахты в закрытом положении установленным требованиям | ГОСТ Р 53780, 5.4.1.12 |
| 81 Наличие автоматических замков, запирающих двери шахты прежде, чем кабина отойдет от уровня этажной площадки на расстояние 200 мм, и исключающих отпирание дверей снаружи шахты | ГОСТ Р 53780, 5.4.1.13 |
| 82 Возможность движения кабины после перемещения запирающих элементов автоматических замков дверей шахты не менее 7 мм в ответную часть замка | ГОСТ Р 53780, 5.4.1.13.3 |
| 83 Наличие электрических устройств безопасности, контролирующих запирание автоматических замков дверей шахты, и их соответствие установленным требованиям | ГОСТ Р 53780, 5.4.1.13.3, 5.5.4.15 |
| 84 Наличие на замке таблички с указанием изготовителя и идентификационного номера | ГОСТ Р 53780, 5.4.1.13.5 |
| 85 Возможность отпирания дверей шахты снаружи специальным ключом | ГОСТ Р 53780, 5.4.1.13.6 |
| 86 Соответствие ключевины устройства для отпирания снаружи автоматического замка двери шахты установленным требованиям | ГОСТ Р 53780, 5.4.1.13.6, приложение А |
| 87 Наличие автоматического закрывания и запирания автоматических дверей шахты при отсутствии кабины в зоне отпирания дверей | ГОСТ Р 53780, 5.4.1.13.6 |
| 88 Наличие неавтоматических замков или устройств, удерживающих в закрытом положении двери шахты, закрываемые вручную | ГОСТ Р 53780, 5.4.1.13.7 |
| 89 Наличие электрических устройств безопасности, контролирующих закрытие дверей шахты, и их соответствие установленным требованиям | ГОСТ Р 53780, 5.4.1.14, 5.5.4.12, 5.5.4.16 |
| 90 Соответствие размеров в свету дверей для технического обслуживания оборудования установленным требованиям | ГОСТ Р 53780, 5.4.1.16.1 |
| 91 Соответствие размеров в свету аварийных дверей установленным требованиям | ГОСТ Р 53780, 5.4.1.16.1 |
| 92 Соответствие размеров в свету смотровых люков установленным требованиям | ГОСТ Р 53780, 5.4.1.16.1 |
| 93 Наличие сплошных аварийных дверей и смотровых люков, открывающихся наружу | ГОСТ Р 53780, 5.4.1.16.2, 5.4.1.16.4 |
| 94 Наличие замков с ключевинами, соответствующими установленным требованиям, на дверях для технического обслуживания оборудования, аварийных дверях и смотровых люках, открывающегося изнутри шахты лифта без ключа | ГОСТ Р 53780, 5.4.1.16.3 |
| 95 Наличие электрических устройств безопасности, контролирующих закрытие дверей для технического обслуживания оборудования, аварийных дверей и смотровых люков, размыкающих цепь безопасности при открытии дверей и люков | ГОСТ Р 53780, 5.4.1.16.5, 5.5.4.17 |
| 96 Соответствие высоты направляющих кабины и противовеса установленным требованиям | ГОСТ Р 53780, 5.4.2.4 |
| 97 Наличие мер по предотвращению спадания канатов или цепей с блоков или звездочек | ГОСТ Р 53780, 6.4.6 |
| 98 Наличие мер по предотвращению телесных повреждений | ГОСТ Р 53780, 6.4.6 |
| 99 Наличие в кабине лифта, допускающего транспортирование людей, сплошных стен, пола, потолочного перекрытия | ГОСТ Р 53780, 5.4.4.2.1 |
| 100 Соответствие номинальной грузоподъемности лифта самостоятельного пользования, установленным требованиям | ГОСТ Р 53780, 8.1 |
| 101 Соответствие вместимости кабины установленным требованиям | ГОСТ Р 53780, 8.2 |
| 102 Наличие в кабине лифта стационарного электрического освещения | ГОСТ Р 53780, 5.5.6.15 |
| 103 Наличие не менее двух параллельно включенных источников света рабочего освещения кабины | ГОСТ Р 53780, 5.5.6.15.1 |
| 104 Наличие аварийного источника питания освещения кабины с автоматической подзарядкой, способного запитывать как минимум одну лампу мощностью 1 Вт или светодиодные источники света в течение 1 ч | ГОСТ Р 53780, 5.5.6.15.2 |
| 105 Соответствие многослойного стекла для ограждения кабины установленным требованиям | ГОСТ Р 53780, 5.4.4.2.3 |
| 106 Наличие у стены кабины со стеклом, установленным ниже 1100 мм от уровня пола, поручня, установленного на высоте 900-1100 мм и закрепленного независимо от стекла | ГОСТ Р 53780, 5.4.4.2.3 |
| 107 Наличие на крыше кабины, на которую возможен выход персонала, свободной площадки для персонала с площадью не менее 0,12 м с размером меньшей стороны не менее 250 мм | ГОСТ Р 53780, 5.4.4.3.2 |
| 108 Наличие ограждения на крыше кабины со стороны зазора между краем крыши кабины и внутренней поверхностью ограждения шахты, превышающего 300 мм | ГОСТ Р 53780, 5.4.4.3.3 |
| 109 Наличие в конструкции ограждения на крыше кабины поручня, обшивки понизу и поперечины, расположенной на половине высоты ограждения | ГОСТ Р 53780, 5.4.4.3.3.1 |
| 110 Соответствие высоты ограждения на крыше кабины установленным требованиям | ГОСТ Р 53780, 5.4.4.3.3.1 |
| 111 Наличие электрического устройства безопасности (при применении складного ограждения на крыше кабины), контролирующего положение складного ограждения на крыше кабины и размыкающего цепь безопасности при установке ограждения | ГОСТ Р 53780, 5.4.4.3.3.1, 5.5.4.35 |
| 112 Соответствие зазора между наружным краем поручня ограждения на крыше кабины и оборудованием, расположенным в шахте, установленным требованиям | ГОСТ Р 53780, 5.4.4.3.3.2 |
| 113 Наличие на крыше кабины устройства остановки лифта размыкающего цепь безопасности при ручном воздействии | ГОСТ Р 53780, 5.4.4.4, 5.5.4.22 |
| 114 Наличие на крыше кабины электрической розетки для подключения электрического инструмента с напряжением питания не более 254 В | ГОСТ Р 53780, 5.4.4.4, 5.5.6.5 |
| 115 Наличие вертикального щита на всю ширину дверного проема высотой не менее 750 мм, установленного заподлицо с передней кромкой порога | ГОСТ Р 53780, 5.4.4.5 |
| 116 Наличие электрического устройства безопасности (при применении складного щита под порогом кабины), контролирующего положение складного щита и размыкающего цепь безопасности при невозврате щита в рабочее состояние | ГОСТ Р 53780, 5.5.4.36 |
| 117 Соответствие высоты кабины установленным требованиям | ГОСТ Р 53780, 5.4.4.6 |
| 118 Соответствие высоты в свету входного проема кабины лифтов, допускающих транспортирование людей, установленным требованиям | ГОСТ Р 53780, 5.4.4.7 |
| 119 Наличие сплошной двери кабины | ГОСТ Р 53780, 5.4.4.8 |
| 120 Наличие вертикально-раздвижной двери кабины грузовых лифтов, в которых запрещено транспортирование людей, и ее соответствие установленным требованиям | ГОСТ Р 53780, 5.4.4.8, а) |
| 121 Наличие раздвижной решетчатой двери кабины грузовых лифтов, в которых запрещено транспортирование людей или которые управляются из кабины лифтером (проводником), и ее соответствие установленным требованиям | ГОСТ Р 53780, 5.4.4.8, б) |
| 122 Соответствие зазора между створками, между обвязкой дверного проема и створками или между створками и порогом при закрытой двери кабины установленным требованиям | ГОСТ Р 53780, 5.4.4.8.1 |
| 123 Наличие смотровых отверстий двери кабины, если двери шахты оборудованы смотровыми отверстиями, и соответствие их расположения установленным требованиям | ГОСТ Р 53780, 5.4.4.8.3 |
| 124 Соответствие толщины и маркировки многослойного стекла двери кабины установленным требованиям | ГОСТ Р 53780, 5.4.4.8.5 |
| 125 Наличие электрического устройства безопасности, контролирующего закрытие двери кабины и предотвращающего движение кабины при открытых дверях | ГОСТ Р 53780, 5.4.4.8.9, 5.5.4.18 |
| 126 Наличие автоматического замка, запирающего дверь кабины прежде, чем кабина отойдет от уровня этажной площадки на расстояние 200 мм | ГОСТ Р 53780, 5.4.4.8.10 |
| 127 Наличие устройства, запирающего дверь кабины одновременно с закрытием двери кабины | ГОСТ Р 53780, 5.4.4.8.10 |
| 128 Соответствие аварийного люка кабины установленным требованиям | ГОСТ Р 53780, 5.4.4.9 |
| 129 Соответствие аварийной двери кабины установленным требованиям | ГОСТ Р 53780, 5.4.4.10 |
| 130 Наличие электрического устройства безопасности, контролирующего запирание аварийной двери кабины, размыкающего цепь безопасности при отпирании аварийной двери кабины | ГОСТ Р 53780, 5.4.4.11, 5.5.4.19 |
| 131 Наличие электрического устройства безопасности, контролирующего запирание аварийного люка кабины, размыкающего цепь безопасности при отпирании аварийного люка кабины | ГОСТ Р 53780, 5.4.4.11, 5.5.4.19 |
| 132 Наличие вентиляционных отверстий в верхней и нижней части кабины | ГОСТ Р 53780, 5.4.4.12 |
| 133 Наличие башмаков кабины, конструкция которых исключает выход кабины из направляющих | ГОСТ Р 53780, 5.4.4.14 |
| 134 Наличие сведений (грузоподъемность, вместимость, изготовитель лифта, заводской номер) в кабине лифта | ГОСТ Р 53780, 5.4.4.15 |
| 135 Исключение самопроизвольного смещения грузов уравновешивающего устройства в горизонтальной и вертикальной плоскостях | ГОСТ Р 53780, 5.4.5.2 |
| 136 Наличие башмаков уравновешивающего устройства, конструкция которых исключает выход противовеса из направляющих | ГОСТ Р 53780, 5.4.5.3 |
| 137 Наличие защитных мер, препятствующих свободному падению, опусканию на повышенной скорости и сползанию кабины | ГОСТ Р 53780, 6.5 |
| 138 Наличие ловителей плавного торможения кабины лифта с номинальной скоростью более 0,63 м/с | ГОСТ Р 53780, 5.4.6.4 |
| 139 Наличие ловителей резкого торможения кабины лифта с номинальной скоростью не более 0,63 м/с | ГОСТ Р 53780, 5.4.6.4 |
| 140 Наличие электрического устройства безопасности, контролирующего срабатывание ловителей кабины, размыкающего цепь безопасности до или при срабатывании ловителей | ГОСТ Р 53780, 5.5.4.23, 5.4.6.8 |
| 141 Наличие средств, вызывающих срабатывание ловителей | ГОСТ Р 53780, 6.6.4 |
| 142 Соответствие диаметра каната, приводящего в действие ограничитель скорости, установленным требованиям | ГОСТ Р 53780, 5.4.7.5 |
| 143 Наличие на ограничителе скорости указания о направлении вращения, соответствующего включению ловителей | ГОСТ Р 53780, 5.4.7.6 |
| 144 Наличие электрического устройства безопасности, контролирующего обрыв или превышение регламентированной вытяжки каната, приводящего в действие ограничитель скорости и размыкающего цепь безопасности при его срабатывании | ГОСТ Р 53780, 5.4.7.5.4, 5.5.4.25 |
| 145 Наличие электрического устройства безопасности, контролирующего срабатывание ограничителя скорости и размыкающего цепь безопасности до достижения движущейся вниз кабиной скорости, при которой происходит срабатывание ограничителя скорости (или при скорости срабатывания ограничителя скорости у лифтов с номинальной скоростью не более 1,0 м/с) | ГОСТ Р 53780, 5.4.7.7, 5.5.4.20 |
| 146 Наличие электрического устройства безопасности, предотвращающего пуск лифта до приведения ограничителя скорости в исходное положение, для лифта у которого ограничитель скорости не возвращается автоматически в исходное состояние после снятия с ловителей | ГОСТ Р 53780, 5.4.7.8, 5.5.4.21 |
| 147 Соответствие ограничителя скорости, расположенного в шахте, установленным требованиям | ГОСТ Р 53780, 5.4.7.9 |
| 148 Наличие таблички со сведениями (изготовитель, идентификационный номер, скорость срабатывания ограничителя скорости) на ограничителе скорости | ГОСТ Р 53780, 5.4.7.11 |
| 149 Наличие электрического устройства безопасности, контролирующего положение механизма, блокирующего канат безопасности, размыкающего цепь безопасности не позднее момента блокирования каната и предотвращающее любое дальнейшее движение кабины вниз | ГОСТ Р 53780, 6.6.4.3.1, 5.5.4.37 |
| 150 Наличие электрического устройства безопасности, контролирующего положение рычага, размыкающего цепь безопасности не позднее момента выхода рычага и предотвращающее любое нормальное движение кабины вниз | ГОСТ Р 53780, 6.6.4.4, 5.5.4.38 |
| 151 Наличие электрической системы, препятствующей сползанию кабины ниже уровня этажной площадки более 120 мм, но не более нижнего края зоны отпирания дверей и обеспечивающей движение вверх независимо от состояния дверей | ГОСТ Р 53780, 6.7.10 |
| 152 Наличие буферов, ограничивающих перемещение кабины вниз и удерживающих в неподвижном состоянии кабину с номинальной загрузкой на уровне, не превышающем 120 мм ниже уровня самой нижней посадочной (погрузочной) площадки | ГОСТ Р 53780, 6.4.5 |
| 153 Наличие электрического устройства безопасности, контролирующего автоматическое возвращение буфера энергорассеивающего типа в исходное положение и размыкающего цепь безопасности, если буфер не возвращается в исходное положение более чем на 50 мм | ГОСТ Р 53780, 5.4.8.4.3, 5.5.4.29 |
| 154 Наличие возможности контроля уровня жидкости в гидравлическом буфере | ГОСТ Р 53780, 5.4.8.4.4 |
| 155 Наличие таблички со сведениями (изготовитель, идентификационный номер буфера) на буфере | ГОСТ Р 53780, 5.4.8.4.6 |
| 156 Наличие не менее двух стальных проволочных канатов или стальных цепей с параллельными звеньями или приводных роликовых (втулочных) цепей на которых подвешены кабина и уравновешивающее устройство кабины | ГОСТ Р 53780, 6.4.6, 5.4.9.2, 5.4.9.4 |
| 157 Соответствие номинального диаметра стальных проволочных канатов установленным требованиям | ГОСТ Р 53780, 6.4.6 |
| 158 Соответствие коэффициента запаса прочности тяговых канатов, указанного в паспорте лифта, установленным требованиям | ГОСТ Р 53780, 5.4.9.6.3 |
| 159 Соответствие коэффициента запаса прочности тяговых цепей, указанного в паспорте лифта, установленным требованиям | ГОСТ Р 53780, 5.4.9.7 |
| 160 Наличие автоматического устройства для уменьшения разности натяжения в отдельных тяговых элементах | ГОСТ Р 53780, 5.4.9.8.1 |
| 161 Наличие автоматического устройства для уменьшения разности натяжения в отдельных тяговых цепях, как со стороны кабины, так и со стороны уравновешивающего груза | ГОСТ Р 53780, 5.4.9.8.1 |
| 162 Наличие электрического устройства безопасности, размыкающего цепь безопасности при относительном перемещении (ослаблении) тяговых элементов сверх значения, допустимого автоматическим устройством для уменьшения разности натяжения в отдельных тяговых элементах, и при обрыве одного, нескольких или всех тяговых элементов | ГОСТ Р 53780, 6.4.6, 5.5.4.24 |
| 163 Наличие у лифта собственного привода | ГОСТ Р 53780, 6.8.1.1 |
| 164 Наличие гибкого соединения плунжера (цилиндра) с кабиной у лифта прямого действия | ГОСТ Р 53780, 6.8.2.2 |
| 165 Наличие направляющих для перемещения оголовка плунжера (цилиндра) у лифта непрямого действия | ГОСТ Р 53780, 6.8.2.3 |
| 166 Наличие устройства ограничения рабочего хода плунжера у лифта непрямого действия | ГОСТ Р 53780, 6.8.2.3 |
| 167 Наличие защитной трубы, в которую установлен гидроцилиндр, расположенный в земле | ГОСТ Р 53780, 6.8.2.4 |
| 168 Обеспечение сбора рабочей жидкости, удаляемой или вытекающей из верхней части цилиндра | ГОСТ Р 53780, 6.8.2.5 |
| 169 Наличие устройства для выпуска воздуха из гидроцилиндра | ГОСТ Р 53780, 6.8.2.6 |
| 170 Наличие упоров между последовательными секциями телескопического гидроцилиндра, предотвращающих выход плунжеров из своих цилиндров | ГОСТ Р 53780, 6.8.3.1 |
| 171 Наличие защиты от механических повреждений трубопровода и фитингов, подверженных действию давления | ГОСТ Р 53780, 6.8.4.1 |
| 172 Доступность для осмотра трубопровода и фитингов | ГОСТ Р 53780, 6.8.4.2 |
| 173 Наличие уплотнительных втулок, защищающих трубопровод, в случае прохождения труб (жестких или гибких) сквозь стены или пол | ГОСТ Р 53780, 6.8.4.2 |
| 174 Наличие несмываемой маркировки на гибком трубопроводе со сведениями, соответствующими установленным требованиям | ГОСТ Р 53780, 6.8.4.4 |
| 175 Наличие запорного клапана, установленного на участке соединения гидроцилиндра с обратным клапаном и клапаном движения вниз | ГОСТ Р 53780, 6.8.5.1 |
| 176 Наличие обратного клапана, установленного на участке между насосом и запорным клапаном | ГОСТ Р 53780, 6.8.5.2 |
| 177 Наличие предохранительного клапана, установленного на участке между насосом и обратным клапаном | ГОСТ Р 53780, 6.8.5.3 |
| 178 Наличие клапанов направления (клапана движения вниз, клапана движения вверх) | ГОСТ Р 53780, 6.8.5.4 |
| 179 Наличие разрывного клапана | ГОСТ Р 53780, 6.8.5.5 |
| 180 Доступность разрывного клапана для проведения регулирования и осмотра | ГОСТ Р 53780, 6.8.5.5, б) |
| 181 Размещение разрывного клапана в соответствии с установленными требованиями | ГОСТ Р 53780, 6.8.5.5, в) |
| 182 Наличие устройства с ручным управлением, при помощи которого можно добиться необходимого для срабатывания разрывного клапана расхода рабочей жидкости, не перегружая при этом кабину лифта | ГОСТ Р 53780, 6.8.5.5, е) |
| 183 Наличие дросселя (одностороннего дросселя) | ГОСТ Р 53780, 6.8.5.6 |
| 184 Наличие фильтров или аналогичных устройств на участке между резервуаром и насосом и на участке между запорным клапаном и клапаном движения вниз, доступных для технического обслуживания | ГОСТ Р 53780, 6.8.6 |
| 185 Наличие прибора контроля давления, подключенного на участке между обратным клапаном или клапаном движения вниз и запорным клапаном | ГОСТ Р 53780, 6.8.7.1 |
| 186 Наличие запорного клапана, установленного между главным контуром и соединением для прибора контроля давления | ГОСТ Р 53780, 6.8.7.2 |
| 187 Наличие контроля уровня рабочей жидкости в резервуаре | ГОСТ Р 53780, 6.8.8 |
| 188 Наличие ручного аварийного клапана, который позволяет кабине даже в случае отключения электроэнергии опуститься на этажную площадку | ГОСТ Р 53780, 6.8.10.1, а) |
| 189 Срабатывание клапана аварийного управления происходит при постоянном приложении ручного усилия | ГОСТ Р 53780, 6.8.10.1, в) |
| 190 Наличие защиты клапана аварийного управления от непреднамеренных действий | ГОСТ Р 53780, 6.8.10.1, г) |
| 191 Наличие стационарного ручного насоса, присоединенного на участке между обратным клапаном или клапаном движения вниз и запорным клапаном, для перемещения кабины вверх у лифта, кабина которого оборудована ловителями | ГОСТ Р 53780, 6.8.10.2, а), б) |
| 192 Наличие предохранительного клапана, ограничивающего давление, на ручном насосе | ГОСТ Р 53780, 6.8.10.2, в) |
| 193 Наличие возможности контроля из машинного помещения нахождения кабины в зоне отпирания дверей при помощи средств, оснащенных независимым источником питания для лифта, обслуживающего более двух этажей | ГОСТ Р 53780, 6.8.11 |
| 194 Наличие ограничителя времени работы двигателя, который отключает привод и поддерживает его в отключенном состоянии, если привод не вращается после того, как на него была подана команда запуска | ГОСТ Р 53780, 6.8.12.1 |
| 195 Отсутствие блокировки движения кабины в режиме "Ревизия" и работы электрической системы, препятствующей сползанию, при срабатывании ограничителя времени работы двигателя | ГОСТ Р 53780, 6.8.12.4 |
| 196 Наличие устройства, определяющего температуру рабочей жидкости | ГОСТ Р 53780, 6.8.13 |
| 197 Наличие устройства (вводное устройство, автоматический выключатель и др.) с ручным приводом, прерывающего питание всех электрических цепей, за исключением цепей освещения помещений для размещения оборудования лифта, шахты, кабины, розеток для подключения электроинструмента, вентиляции кабины, двусторонней переговорной связи, аварийной сигнализации, вызова обслуживающего персонала из кабины | ГОСТ Р 53780, 5.5.1.2, 5.5.1.4, а)-и) |
| 198 Наличие возможности блокировки устройства с ручным приводом для предотвращения непреднамеренного включения | ГОСТ Р 53780, 5.5.1.2 |
| 199 Наличие отдельных выключателей для цепей освещения помещений для размещения оборудования лифта, шахты, кабины, розеток для подключения электроинструмента | ГОСТ Р 53780, 5.5.1.4 |
| 200 Наличие не менее двух питающих линий при расположении в общем машинном помещении оборудования нескольких лифтов | ГОСТ Р 53780, 5.5.1.5 |
| 201 Наличие несамовозвратных устройств в каждом из помещений при размещении электрооборудования лифта в разных помещениях | ГОСТ Р 53780, 5.5.1.6 |
| 202 Соответствие напряжения силовых электрических цепей установленным требованиям | ГОСТ Р 53780, 5.1.8 |
| 203 Соответствие напряжения питания цепей управления, подключения ремонтного инструмента, освещения и сигнализации установленным требованиям | ГОСТ Р 53780, 5.5.1.8 |
| 204 Соответствие напряжения электрических цепей при применении переносных ламп установленным требованиям | ГОСТ Р 53780, 5.5.1.9 |
| 205 Отсутствие в заземляющих проводниках предохранителей, контактов и других размыкающих элементов, в том числе бесконтактных | ГОСТ Р 53780, 5.5.1.14 |
| 206 Наличие защиты от случайного прикосновения токоведущих частей выключателей и устройств с ручным приводом, выключателей, устанавливаемых в шахте, помещении для размещения оборудования, выключателей дистанционного отключения электрических цепей с напряжением на них более 42 В переменного тока или 60 В постоянного тока | ГОСТ Р 53780, 5.5.1.15 |
| 207 Наличие символов или надписей "Вкл.", "Откл.", соответственно обозначающих положение выключателей и устройств с ручным приводом, выключателей, устанавливаемых в шахте, помещении для размещения оборудования, выключателей дистанционного отключения | ГОСТ Р 53780, 5.5.1.15 |
| 208 Наличие на посту управления в кабине лифта с автоматическими дверями кнопки "Двери", нажатие на которую приводит к открыванию дверей при нахождении неподвижной кабины на уровне этажной площадки | ГОСТ Р 53780, 5.5.3.3 |
| 209 Исключение выполнения новой команды управления, кроме команды "Стоп", до выполнения ранее поданной команды | ГОСТ Р 53780, 5.5.3.5 |
| 210 Наличие устройства для защиты электродвигателя от перегрузки, прекращающего подачу питания на двигатель и возвращаемого в исходное положение вручную | ГОСТ Р 53780, 5.5.3.9 |
| 211 Соответствие функционирования лифта в режиме "Управление из машинного помещения" установленным требованиям | ГОСТ Р 53780, 5.5.3.12 |
| 212 Соответствие функционирования лифта в режиме "Ревизия" установленным требованиям | ГОСТ Р 53780, 5.5.3.13 |
| 213 Отключение электрической системы, препятствующей сползанию кабины, при переключении лифта в режим "Ревизия" | ГОСТ Р 53780, 6.9.2 |
| 214 Наличие устройства, контролирующего перегрузку кабины и предотвращающего движение кабины при размещении в ней груза, массой превышающей номинальную грузоподъемность лифта на 10%, но не менее чем на 75 кг | ГОСТ Р 53780, 5.5.3.15 |
| 215 Наличие звукового и (или) светового сигнального устройства, сигнализирующего о перегрузке кабины лифта | ГОСТ Р 53780, 5.5.3.15 |
| 216 Наличие средств для подключения к двусторонней переговорной связи с помещением для обслуживающего персонала на крыше кабины и в кабине | ГОСТ Р 53780, 5.5.3.16 |
| 217 Наличие ремонтной телефонной или другой двусторонней связи и ее соответствие установленным требованиям | ГОСТ Р 53780, 5.5.3.17 |
| 218 Наличие устройства, размыкающего цепь безопасности при несанкционированном открытии дверей шахты в режиме "Нормальная работа" у пассажирского лифта | ГОСТ Р 53780, 5.5.3.20 |
219 Наличие возможности снятия сигнала с системы управления лифта, предназначенного для подключения к устройству диспетчерского контроля, с целью передачи от лифта к устройству диспетчерского контроля следующей информации:
| ГОСТ Р 53780, 5.5.3.21 |
| 220 Наличие режима "Пожарная опасность" у пассажирского лифта с автоматическим приводом дверей, обеспечивающего независимо от загрузки и направления движения возвращение ее на основной посадочный этаж здания, открытие и удержание в открытом состоянии дверей кабины и шахты, при включении лифта в этот режим | ГОСТ Р 53780, 5.5.3.22 |
| 221 Остановка или предотвращение пуска электродвигателя главного привода при срабатывании электрического устройства безопасности | ГОСТ Р 53780, 5.5.4.1 |
| 222 Срабатывание контактов безопасности электрических устройств безопасности происходит за счет их принудительного размыкания | ГОСТ Р 53780, 5.5.4.5 |
| 223 Наличие контроля концевым выключателем положения плунжера, соответствующего верхнему пределу перемещения кабины, в том числе в случае нахождения плунжера на упоре | ГОСТ Р 53780, 6.9.4.1 |
| 224 Остановка привода и удержание его в состоянии остановки при срабатывании концевого выключателя | ГОСТ Р 53780, 6.9.4.2 |
| 225 Автоматическое замыкание концевого выключателя при покидании кабины зоны его срабатывания | ГОСТ Р 53780, 6.9.4.2 |
Таблица Ж.3
| Общие требования безопасности, контролируемые при проведении технического освидетельствования малого грузового лифта | Обозначение нормативного документа, устанавливающего соответствующее требование |
| 1 Расположение кабины и противовеса лифта в одной шахте | ГОСТ Р 53780, 5.2.2 |
| 2 Соответствие сплошного ограждения шахты установленным требованиям (для полностью огражденной шахты) | ГОСТ Р 53780, 5.2.3 |
| 3 Соответствие сплошного ограждения шахты установленным требованиям (для частично огражденной шахты) | ГОСТ Р 53780, 5.2.4 |
| 4 Соответствие стеклянных панелей, применяемых для ограждения шахты в доступных для людей местах, установленным требованиям | ГОСТ Р 53780, 5.2.5.2 |
| 5 Наличие решетки, соответствующей установленным требованиям, закрывающей вентиляционные отверстия в ограждении шахты лифта в местах непосредственно доступных для людей | ГОСТ Р 53780, 5.2.7 |
| 6 Наличие перегородок между движущимися частями различных лифтов, соответствующих установленным требованиям, в случае нахождения в одной шахте нескольких лифтов | ГОСТ Р 53780, 5.2.9 |
| 7 Соответствие высоты шахты лифта установленным требованиям | ГОСТ Р 53780, 7.2.4 |
| 8 Возможность перемещения противовеса по направляющим на расстояние не менее (0,1+0,035v) м при нахождении на полностью сжатых буферах кабины лифта, оборудованного лебедкой с канатоведущим шкивом или барабаном трения | ГОСТ Р 53780, 5.2.10.2 |
| 9 Обеспечение возможности технического обслуживания направляющих блоков, ограничителя скорости, элементов подвески канатов и др., расположенных под верхним перекрытием шахты | ГОСТ Р 53780, 5.2.10.6 |
| 10 Соответствие глубины приямка установленным требованиям | ГОСТ Р 53780, 7.2.6 |
| 11 Наличие в шахте несамовозвратного электрического устройства безопасности (кнопки "Стоп"), размыкающего цепь безопасности от ручного воздействия | ГОСТ Р 53780, 5.2.11.6, а); 5.5.4.30 |
| 12 Отсутствие в шахте лифта оборудования и коммуникаций, не относящихся к лифту (за исключением систем пожарной и охранной сигнализации, диспетчерского контроля и систем, предназначенных для отопления и вентиляции шахты) | ГОСТ Р 53780, 5.2.12 |
| 13 Наличие стационарного электрического освещения шахты лифта, обеспечивающего освещенность не менее 50 лк в 1 м над крышей кабины и полом приямка при закрытых дверях шахты | ГОСТ Р 53780, 5.5.6.6 |
| 14 Соответствие расположения крайнего верхнего аппарата освещения шахты установленным требованиям | ГОСТ Р 53780, 5.5.6.6, 7.5.6.3 |
| 15 Возможность включения освещения шахты из шахты и (или) машинного помещения | ГОСТ Р 53780, 5.2.13 |
| 16 Соответствие расположения выключателя освещения шахты установленным требованиям | ГОСТ Р 53780, 5.2.13 |
| 17 Наличие в приямке электрической розетки для подключения электрического инструмента с напряжением питания не более 254 В | ГОСТ Р 53780, 5.2.14, 5.5.6.5 |
| 18 Обеспечение недоступности непосредственно для пользователей и посторонних лиц оборудования лифта | ГОСТ Р 53780, 5.3.1, 7.3.3, 7.3.4, 7.3.5 |
| 19 Наличие стационарного электрического освещения площадки перед входом в помещение, в котором размещено оборудование лифта, обеспечивающего освещенность не менее 50 лк на уровне пола | ГОСТ Р 53780, 5.5.6.8, 7.5.6.2 |
| 20 Соответствие доступа к лебедке и направляющим блокам лифта установленным требованиям | ГОСТ Р 53780, 7.3.3, 7.3.6 |
| 21 Соответствие высоты помещения для размещения лебедки и направляющих блоков лифта установленным требованиям | ГОСТ Р 53780, 7.3.3 |
| 22 Отсутствие оборудования и коммуникаций, не относящихся к лифту, в помещениях с размещенным оборудованием | ГОСТ Р 53780, 5.3.2.3 |
| 23 Наличие на устройстве для подвески грузоподъемных средств информации о его грузоподъемности или допустимой нагрузке (при наличии грузоподъемных средств) | ГОСТ Р 53780, 5.3.2.4 |
| 24 Соответствие сплошного ограждения машинного помещения установленным требованиям | ГОСТ Р 53780, 5.3.3.1 |
| 25 Соответствие сплошного ограждения блочного помещения установленным требованиям | ГОСТ Р 53780, 5.3.3.1 |
| 26 Соответствие пола машинного помещения установленным требованиям | ГОСТ Р 53780, 5.3.3.2 |
| 27 Соответствие пола блочного помещения установленным требованиям | ГОСТ Р 53780, 5.3.3.2 |
| 28 Соответствие двери для доступа в машинное помещение и размеров дверного проема установленным требованиям | ГОСТ Р 53780, 5.3.3.4 |
| 29 Отсутствие входа в машинное помещение через люк | ГОСТ Р 53780, 5.3.3.4 |
| 30 Соответствие двери для доступа в блочное помещение и размеров дверного проема установленным требованиям | ГОСТ Р 53780, 5.3.3.5 |
| 31 Соответствие размеров люка для доступа в блочное помещение установленным требованиям | ГОСТ Р 53780, 5.3.3.6 |
| 32 Наличие сплошной крышки люка для доступа в блочное помещение | ГОСТ Р 53780, 5.3.3.6 |
| 33 Наличие сплошной крышки люка для подачи материалов и оборудования в машинное или блочное помещение, открывающейся вверх | ГОСТ Р 53780, 5.3.3.7 |
| 34 Соответствие запирания дверей и крышек люков для доступа в машинное и блочное помещение установленным требованиям | ГОСТ Р 53780, 5.3.3.8 |
| 35 Соответствие запирания крышки люка для подачи материалов установленным требованиям | ГОСТ Р 53780, 5.3.3.8 |
| 36 Соответствие размеров машинного помещения установленным требованиям | ГОСТ Р 53780, 5.3.3.9, а) |
| 37 Соответствие размеров блочного помещения установленным требованиям | ГОСТ Р 53780, 5.3.3.9, б) |
| 38 Наличие зон обслуживания (свободных площадок) в машинном и блочном помещении и соответствие их размеров установленным требованиям | ГОСТ Р 53780, 5.3.3.9, в), г), д), е) |
| 39 Наличие в машинном или блочном помещении, пол которого имеет несколько уровней, лестницы (ступеней, пандуса), и соответствие лестницы (ступеней, пандуса) установленным требованиям | ГОСТ Р 53780, 5.3.3.10 |
| 40 Наличие перил высотой более 900 мм на лестнице (ступенях, пандусе), на верхней площадке в зоне перепада уровней, при разнице уровней пола машинного или блочного помещения | ГОСТ Р 53780, 5.3.3.10 |
| 41 Соответствие бортиков вокруг отверстий над шахтой лифтов установленным требованиям | ГОСТ Р 53780, 5.3.3.11 |
| 42 Соответствие расстояния от края отверстия до проходящих через него подвижных элементов установленным требованиям | ГОСТ Р 53780, 5.3.3.11 |
| 43 Наличие стационарного электрического освещения машинного помещения, обеспечивающего освещенность не менее 50 лк на уровне пола | ГОСТ Р 53780, 5.5.6.9 |
| 44 Наличие стационарной электрической аппаратуры в зонах размещения оборудования в машинном помещении, обеспечивающей освещенность оборудования не менее 200 лк | ГОСТ Р 53780, 5.5.6.11 |
| 45 Соответствие расположения выключателя освещения машинного помещения установленным требованиям | ГОСТ Р 53780, 5.3.3.12 |
| 46 Наличие в машинном помещении электрической розетки для подключения электрического инструмента с напряжением питания не более 254 В | ГОСТ Р 53780, 5.3.3.12, 5.5.6.5 |
| 47 Наличие стационарной электрической аппаратуры блочного помещения, обеспечивающей освещенность блока (блоков) не менее 100 лк | ГОСТ Р 53780, 5.5.6.10 |
| 48 Соответствие расположения выключателя освещения блочного помещения установленным требованиям | ГОСТ Р 53780, 5.3.3.13 |
| 49 Наличие в блочном помещении электрической розетки для подключения электрического инструмента с напряжением питания не более 254 В | ГОСТ Р 53780, 5.3.3.13, 5.5.6.5 |
| 50 Наличие в блочном помещении несамовозвратного электрического устройства безопасности (кнопки "Стоп"), размыкающего цепь безопасности от ручного воздействия, и соответствие его расположения установленным требованиям | ГОСТ Р 53780, 5.3.3.14, 5.5.4.31 |
| 51 Отсутствие прохода через машинное или блочное помещение на крышу или другие помещения здания (сооружения), не относящиеся к лифту | ГОСТ Р 53780, 5.3.3.15 |
| 52 Наличие сплошных дверей в проемах стен шахты | ГОСТ Р 53780, 5.4.1.1 |
| 53 Соответствие высоты в свету проемов дверей шахты установленным требованиям | ГОСТ Р 53780, 7.4.1.3 |
| 54 Соответствие ширины в свету проемов дверей шахты установленным требованиям | ГОСТ Р 53780, 5.4.1.5 |
| 55 Соответствие наружной поверхности автоматических раздвижных дверей шахты установленным требованиям | ГОСТ Р 53780, 5.4.1.7 |
| 56 Соответствие толщины и маркировки многослойного стекла дверей шахты установленным требованиям | ГОСТ Р 53780, 5.4.1.8 |
| 57 Наличие автоматического устройства реверсирования закрывающихся дверей при воздействии или перед воздействием створок на препятствие | ГОСТ Р 53780, 5.4.1.9.1 |
| 58 Соответствие зазоров между сомкнутыми створками дверей шахты, а также между створками и обвязкой дверного проема, между створками и порогом установленным требованиям | ГОСТ Р 53780, 5.4.1.11 |
| 59 Соответствие горизонтально-раздвижных и вертикально-раздвижных дверей шахты в закрытом положении установленным требованиям | ГОСТ Р 53780, 5.4.1.12 |
| 60 Наличие автоматических замков, запирающих двери шахты прежде, чем кабина отойдет от уровня этажной площадки на расстояние 200 мм, и исключающих отпирание дверей снаружи шахты | ГОСТ Р 53780, 5.4.1.13 |
| 61 Возможность движения кабины после перемещения запирающих элементов автоматических замков дверей шахты не менее 7 мм в ответную часть замка | ГОСТ Р 53780, 5.4.1.13.3 |
| 62 Наличие электрических устройств безопасности, контролирующих запирание автоматических замков дверей шахты, и их соответствие установленным требованиям | ГОСТ Р 53780, 5.4.1.13.3, 5.5.4.15 |
| 63 Наличие на замке таблички с указанием изготовителя и идентификационного номера | ГОСТ Р 53780, 5.4.1.13.5 |
| 64 Возможность отпирания дверей шахты снаружи специальным ключом | ГОСТ Р 53780, 5.4.1.13.6 |
| 65 Соответствие ключевины устройства для отпирания снаружи автоматического замка двери шахты установленным требованиям | ГОСТ Р 53780, 5.4.1.13.6, приложение А |
| 66 Наличие автоматического закрывания и запирания автоматических дверей шахты при отсутствии кабины в зоне отпирания дверей | ГОСТ Р 53780, 5.4.1.13.6 |
| 67 Наличие неавтоматических замков или устройств, удерживающих в закрытом положении двери шахты, закрываемые вручную | ГОСТ Р 53780, 5.4.1.13.7 |
| 68 Наличие электрических устройств безопасности, контролирующих закрытие дверей шахты, и их соответствие установленным требованиям | ГОСТ Р 53780, 5.4.1.14, 5.5.4.12, 5.5.4.16 |
| 69 Соответствие размеров в свету дверей для технического обслуживания оборудования установленным требованиям | ГОСТ Р 53780, 5.4.1.16.1 |
| 70 Соответствие размеров в свету смотровых люков установленным требованиям | ГОСТ Р 53780, 5.4.1.16.1 |
| 71 Наличие сплошных смотровых люков, открывающихся наружу | ГОСТ Р 53780, 5.4.1.16.2, 5.4.1.16.4 |
| 72 Наличие замков с ключевинами, соответствующими установленным требованиям, на дверях для технического обслуживания оборудования и смотровых люках, открывающегося изнутри шахты лифта без ключа | ГОСТ Р 53780, 5.4.1.16.3 |
| 73 Наличие электрических устройств безопасности, контролирующих закрытие дверей для технического обслуживания оборудования и смотровых люков, размыкающих цепь безопасности при открытии дверей и люков | ГОСТ Р 53780, 5.4.1.16.5, 5.5.4.17 |
| 74 Соответствие высоты направляющих кабины и противовеса установленным требованиям | ГОСТ Р 53780, 5.4.2.4 |
| 75 Соответствие номинальной скорости лифта, оборудованного барабанной лебедкой или лебедкой со звездочкой, установленным требованиям | ГОСТ Р 53780, 5.4.3.3 |
| 76 Обеспечение сцепления тяговых элементов (канатов или ремней) со шкивом или барабаном трения при рабочем режиме и при проведении испытания | ГОСТ Р 53780, 5.4.3.5 |
| 77 Отсутствие подъема пустой кабины при нахождении противовеса на сжатом буфере при проведении испытания | ГОСТ Р 53780, 5.4.3.6 |
| 78 Наличие не менее двух ремней для передачи крутящего момента от электродвигателя | ГОСТ Р 53780, 5.4.3.7 |
| 79 Наличие электрического устройства безопасности, контролирующего натяжение ремней для передачи крутящего момента от электродвигателя, размыкающего цепь безопасности при ослаблении натяжения ремней | ГОСТ Р 53780, 5.4.3.7, 5.5.4.14 |
| 80 Наличие ограждения от случайного прикосновения вращающихся элементов лебедки, которые могут быть источником опасности | ГОСТ Р 53780, 5.4.3.8, 5.4.9.10 |
| 81 Наличие окраски (частичной окраски) в желтый цвет не огражденных вращающихся элементов лебедки | ГОСТ Р 53780, 5.4.3.8 |
| 82 Наличие мер по предотвращению спадания канатов, ремней или цепей с приводных и направляющих элементов | ГОСТ Р 53780, 5.4.3.9, 5.4.9.10 |
| 83 Наличие не менее полутора запасных витков каждого закрепленного на барабане каната, при нахождении кабины (противовеса) на полностью сжатых буферах, при применении барабанной лебедки | ГОСТ Р 53780, 5.4.3.11, б) |
| 84 Наличие автоматически действующего механического тормоза лебедки нормально замкнутого типа, соответствующего установленным требованиям | ГОСТ Р 53780, 5.4.3.12, а), г), д) |
| 85 Соответствие площади пола кабины установленным требованиям | ГОСТ Р 53780, 7.4.4.3 |
| 86 Соответствие наибольшего линейного размера пола кабины установленным требованиям | ГОСТ Р 53780, 7.4.4.3 |
| 87 Соответствие высоты кабины установленным требованиям | ГОСТ Р 53780, 7.4.4.4 |
| 88 Наличие устройств, препятствующих самопроизвольному перемещению перевозимых в кабине лифта предметов | ГОСТ Р 53780, 7.4.4.7 |
| 89 Наличие вертикально-раздвижной двери кабины грузовых лифтов, в которых запрещено транспортирование людей, и ее соответствие установленным требованиям | ГОСТ Р 53780, 5.4.4.8, а) |
| 90 Наличие раздвижной решетчатой двери кабины грузовых лифтов, в которых запрещено транспортирование людей, и ее соответствие установленным требованиям | ГОСТ Р 53780, 5.4.4.8, б) |
| 91 Соответствие зазора между створками, между обвязкой дверного проема и створками или между створками и порогом при закрытой двери кабины установленным требованиям | ГОСТ Р 53780, 5.4.4.8.1 |
| 92 Наличие распашной двери кабины, открывающейся внутрь | ГОСТ Р 53780, 5.4.4.8.2 |
| 93 Наличие башмаков кабины, конструкция которых исключает выход кабины из направляющих | ГОСТ Р 53780, 5.4.4.14 |
| 94 Исключение самопроизвольного смещения грузов противовеса в горизонтальной и вертикальной плоскостях | ГОСТ Р 53780, 5.4.5.2 |
| 95 Наличие башмаков противовеса, конструкция которых исключает выход противовеса из направляющих | ГОСТ Р 53780, 5.4.5.3 |
| 96 Наличие ловителей у малого грузового лифта | ГОСТ Р 53780, 7.4.6.2 |
| 97 Наличие электрического устройства безопасности, контролирующего срабатывание ловителей кабины, размыкающего цепь безопасности до или при срабатывании ловителей | ГОСТ Р 53780, 5.5.4.23, 5.4.6.8 |
| 98 Соответствие диаметра каната, приводящего в действие ограничитель скорости, установленным требованиям | ГОСТ Р 53780, 5.4.7.5 |
| 99 Наличие на ограничителе скорости указания о направлении вращения, соответствующего включению ловителей | ГОСТ Р 53780, 5.4.7.6 |
| 100 Наличие электрического устройства безопасности, контролирующего обрыв или превышение регламентированной вытяжки каната, приводящего в действие ограничитель скорости и размыкающего цепь безопасности при его срабатывании | ГОСТ Р 53780, 5.4.7.5.4, 5.5.4.25 |
| 101 Наличие электрического устройства безопасности, контролирующего срабатывание ограничителя скорости и размыкающего цепь безопасности до достижения движущейся вниз кабиной скорости, при которой происходит срабатывание ограничителя скорости (или при скорости срабатывания ограничителя скорости у лифтов с номинальной скоростью не более 1,0 м/с) | ГОСТ Р 53780, 5.4.7.7, 5.5.4.20 |
| 102 Наличие электрического устройства безопасности, предотвращающего пуск лифта до приведения ограничителя скорости в исходное положение для лифта, у которого ограничитель скорости не возвращается автоматически в исходное состояние после снятии с ловителей | ГОСТ Р 53780, 5.4.7.8, 5.5.4.21 |
| 103 Соответствие ограничителя скорости, расположенного в шахте, установленным требованиям | ГОСТ Р 53780, 5.4.7.9 |
| 104 Наличие таблички со сведениями (изготовитель, идентификационный номер, скорость срабатывания ограничителя скорости) на ограничителе скорости | ГОСТ Р 53780, 5.4.7.11 |
| 105 Наличие буферов, ограничивающих перемещение кабины и противовеса вниз | ГОСТ Р 53780, 5.4.8.1 |
| 106 Наличие таблички со сведениями (изготовитель, идентификационный номер буфера) на буфере | ГОСТ Р 53780, 5.4.8.4.6 |
| 107 Наличие тяговых элементов одинаковой конструкции для подвески кабины, противовеса (уравновешивающего устройства кабины), имеющих одинаковые размеры и характеристики | ГОСТ Р 53780, 5.4.9.2, 5.4.9.4, 7.4.9.4 |
| 108 Соответствие номинального диаметра стальных проволочных канатов установленным требованиям | ГОСТ Р 53780, 5.4.9.6.1 |
| 109 Соответствие коэффициента запаса прочности тяговых канатов, указанного в паспорте лифта, установленным требованиям | ГОСТ Р 53780, 7.4.9.3 |
| 110 Соответствие крепления каната к барабану лебедки установленным требованиям | ГОСТ Р 53780, 5.4.9.6.5 |
| 111 Соответствие коэффициента запаса прочности тяговых цепей, указанного в паспорте лифта, установленным требованиям | ГОСТ Р 53780, 7.4.9.3 |
| 112 Наличие автоматического устройства для уменьшения разности натяжения в отдельных тяговых элементах | ГОСТ Р 53780, 5.4.9.8.1 |
| 113 Наличие автоматического устройства для уменьшения разности натяжения в отдельных тяговых цепях, как со стороны кабины, так и со стороны уравновешивающего груза | ГОСТ Р 53780, 5.4.9.8.1 |
| 114 Наличие электрического устройства безопасности при одном или двух тяговых элементах, размыкающего цепь безопасности при относительном перемещении (ослаблении) тяговых элементов сверх значения, допустимого автоматическим устройством для уменьшения разности натяжения в отдельных тяговых элементах, и при обрыве одного или всех тяговых элементов | ГОСТ Р 53780, 5.4.9.8.3, 5.5.4.24 |
| 115 Соответствие защитных мер для канатоведущих шкивов, блоков и звездочек установленным требованиям | ГОСТ Р 53780, 5.4.9.10 |
| 116 Наличие устройства (вводное устройство, автоматический выключатель и др.) с ручным приводом, прерывающего питание всех электрических цепей, за исключением цепей освещения помещений для размещения оборудования лифта, шахты, кабины, розеток для подключения электроинструмента, вентиляции кабины, двусторонней переговорной связи, аварийной сигнализации, вызова обслуживающего персонала из кабины | ГОСТ Р 53780, 5.5.1.2, 5.5.1.4, а) -и) |
| 117 Наличие возможности блокировки устройства с ручным приводом для предотвращения непреднамеренного включения | ГОСТ Р 53780, 5.5.1.2 |
| 118 Наличие отдельных выключателей для цепей освещения помещений для размещения оборудования лифта, шахты, кабины, розеток для подключения электроинструмента | ГОСТ Р 53780, 5.5.1.4 |
| 119 Наличие не менее двух питающих линий при расположении в общем машинном помещении оборудования нескольких лифтов | ГОСТ Р 53780, 5.5.1.5 |
| 120 Наличие несамовозвратных устройств в каждом из помещений, при размещении электрооборудования лифта в разных помещениях | ГОСТ Р 53780, 5.5.1.6 |
| 121 Соответствие напряжения силовых электрических цепей установленным требованиям | ГОСТ Р 53780, 5.5.1.8 |
| 122 Соответствие напряжения питания цепей управления подключения ремонтного инструмента, освещения и сигнализации установленным требованиям | ГОСТ Р 53780, 5.5.1.8 |
| 123 Соответствие напряжения электрических цепей при применении переносных ламп установленным требованиям | ГОСТ Р 53780, 5.5.1.9 |
| 124 Отсутствие в заземляющих проводниках предохранителей, контактов и других размыкающих элементов, в том числе бесконтактных | ГОСТ Р 53780, 5.5.1.14 |
| 125 Наличие защиты от случайного прикосновения токоведущих частей выключателей и устройств с ручным приводом, выключателей, устанавливаемых в шахте, помещении для размещения оборудования, выключателей дистанционного отключения электрических цепей с напряжением на них более 42 В переменного тока или 60 В постоянного тока | ГОСТ Р 53780, 5.5.1.15 |
| 126 Наличие символов или надписей "Вкл.", "Откл.", соответственно обозначающих положение выключателей и устройств с ручным приводом, выключателей, устанавливаемых в шахте, помещении для размещения оборудования, выключателей дистанционного отключения | ГОСТ Р 53780, 5.5.1.15 |
| 127 Исключение выполнения новой команды управления, кроме команды "Стоп", до выполнения ранее поданной команды | ГОСТ Р 53780, 5.5.3.5 |
| 128 Наличие устройства для защиты электродвигателя от перегрузки, прекращающего подачу питания на двигатель и возвращаемого в исходное положение вручную | ГОСТ Р 53780, 5.5.3.9 |
| 129 Наличие наружного управления лифтом | ГОСТ Р 53780, 7.5.3.3 |
| 130 Наличие сигнализации о вызове кабины с каждой погрузочной площадки при управлении лифтом с одной погрузочной площадки | ГОСТ Р 53780, 7.5.3.4 |
| 131 Наличие сигнальных устройств "Занято", включающих сигнал "Занято" при открытии любой двери шахты или во время движения кабины | ГОСТ Р 53780, 7.5.3.5 |
| 132 Наличие устройства для управления лифтом из запираемого шкафа | ГОСТ Р 53780, 7.5.3.6 |
| 133 Соответствие функционирования лифта при управлении лифтом из запираемого шкафа установленным требованиям | ГОСТ Р 53780, 7.5.3.6 |
| 134 Соответствие функционирования лифта в режиме "Управление из машинного помещения" установленным требованиям | ГОСТ Р 53780, 5.5.3.12 |
| 135 Остановка или предотвращение пуска электродвигателя главного привода при срабатывании электрического устройства безопасности | ГОСТ Р 53780, 5.5.4.1 |
| 136 Срабатывание контактов безопасности электрических устройств безопасности происходит за счет их принудительного размыкания | ГОСТ Р 53780, 5.5.4.5 |
| 137 Срабатывание концевого выключателя происходит при переходе кабиной лифта уровня крайней нижней этажной площадки, но до соприкосновения кабины с ее буферами (упорами) | ГОСТ Р 53780, 5.5.4.8, а) |
| 138 Срабатывание концевого выключателя происходит при переходе кабиной лифта, оборудованного в нижней части шахты буфером (упором) для взаимодействия с противовесом, уровня крайней верхней этажной площадки, но до соприкосновения противовеса с этим буфером (упором) | ГОСТ Р 53780, 5.5.4.8, б) |
| 139 Срабатывание концевого выключателя происходит при переходе кабиной лифта, оборудованного уравновешивающим грузом, уровня крайней верхней этажной площадки не более чем на 200 мм | ГОСТ Р 53780, 5.5.4.8, в) |
| 140 Срабатывание концевого выключателя происходит при переходе кабиной лифта, с размещенным на кабине буфером, до соприкосновения буфера с соответствующим упором в шахте | ГОСТ Р 53780, 5.5.4.8, в) |
| 141 Контакты безопасности концевых выключателей разомкнуты при нахождении кабины (противовеса) на буферах | ГОСТ Р 53780, 5.5.4.8 |
| 142 Отсутствие возможности автоматического возвращения в режим "Нормальная работа" после срабатывания концевых выключателей | ГОСТ Р 53780, 5.5.4.8 |
Таблица Ж.4
| Специальные требования безопасности, контролируемые при проведении технического освидетельствования лифта, предназначенного, в том числе, для перевозки инвалидов и маломобильных групп населения | Обозначение нормативного документа, устанавливающего соответствующее требование |
| 1 Соответствие ширины дверного проема лифта в свету установленным требованиям | ГОСТ Р 51631, 5.2.1 |
| 2 Наличие автоматических горизонтально-раздвижных дверей шахты и кабины | ГОСТ Р 51631, 5.2.1 |
| 3 Наличие возможности регулирования времени задержки начала закрытия дверей кабины и шахты лифта | ГОСТ Р 51631, 5.2.3 |
| 4 Недоступность для пользователей средств регулирования времени закрытия дверей | ГОСТ Р 51631, 5.2.3 |
| 5 Обеспечение предотвращения или снижения до безопасного уровня воздействия закрывающихся створок дверей на пользователя, находящегося в дверном проеме | ГОСТ Р 51631, 5.2.4 |
| 6 Наличие устройства контроля дверного проема, обеспечивающего контроль проема на высоте от 25 до 1800 мм от уровня порога кабины | ГОСТ Р 51631, 5.2.4 |
| 7 Соответствие минимального внутреннего размера кабины лифта установленным требованиям | ГОСТ Р 51631, 5.3.1 |
| 8 Наличие на одной из боковых стен кабины поручня | ГОСТ Р 51631, 5.3.2.1 |
| 9 Соответствие размера части поручня, предназначенного для рук пользователя, установленным требованиям | ГОСТ Р 51631, 5.3.2.1 |
| 10 Соответствие расстояния между стеной кабины и предназначенной для рук пользователя частью поручня установленным требованиям | ГОСТ Р 51631, 5.3.2.1 |
| 11 Соответствие высоты от пола кабины до верхней части поручня, предназначенного для рук пользователя, установленным требованиям | ГОСТ Р 51631, 5.3.2.1 |
| 12 Соответствие высоты расположения сиденья от уровня пола кабины и размеров сиденья (глубина, ширина) установленным требованиям при оборудовании лифта откидным сиденьем | ГОСТ Р 51631, 5.3.2.2, а), в), с) |
| 13 Наличие устройства (зеркала), при помощи которого пользователь сможет увидеть возможные препятствия при выезде из кабины задним ходом, у лифта, размеры кабины которого не позволяют пользователю в кресле-коляске развернуться в кабине | ГОСТ Р 51631, 5.3.2.3 |
| 14 Соответствие точности остановки кабины лифта, предназначенного для транспортировки пользователей в кресле-коляске, установленным требованиям | ГОСТ Р 51631, 5.3.3 |
| 15 Соответствие кнопочных аппаратов управления на этажных площадках установленным требованиям | ГОСТ Р 51631, 5.4.1.1 |
| 16 Соответствие клавишных аппаратов управления на этажных площадках установленным требованиям | ГОСТ Р 51631, 5.4.1.2 |
| 17 Наличие маркировки установленным символом использования инвалидами устройств управления на этажных площадках у лифта с управлением разового включения | ГОСТ Р 51631, 5.4.1.3 |
| 18 Расположение устройств управления на этажных площадках при одиночном лифте в непосредственной близости от дверей шахты | ГОСТ Р 51631, 5.4.1.4 |
| 19 Наличие устройства управления на этажных площадках для каждого лифта с групповым управлением расположенных друг против друга | ГОСТ Р 51631, 5.4.1.4 |
| 20 Наличие одного устройства управления на этажных площадках для каждого лифта с групповым управлением при одностороннем расположении лифтов | ГОСТ Р 51631, 5.4.1.4 |
| 21 Соответствие маркировки кнопок управления в кабине установленным требованиям | ГОСТ Р 51631, 5.4.2.1 |
| 22 Соответствие кнопок поста управления в кабине установленным требованиям | ГОСТ Р 51631, 5.4.2.2 |
| 23 Соответствие расположения кнопок поста управления в кабине установленным требованиям | ГОСТ Р 51631, 5.4.2.2 |
| 24 Соответствие расположения поста управления в кабине установленным требованиям | ГОСТ Р 51631, 5.4.2.3 |
| 25 Включение звукового сигнала на этажной площадке в момент начала открывания дверей | ГОСТ Р 51631, 5.4.3.1 |
| 26 Наличие указателей направления движения кабины на этажной площадке и их соответствие установленным требованиям | ГОСТ Р 51631, 5.4.3.2 |
| 27 Соответствие лифтов, имеющих систему управления, использующую регистрацию этажа назначения установленным требованиям | ГОСТ Р 51631, 5.4.3.4 |
| 28 Соответствие расположения указателя местоположения кабины установленным требованиям | ГОСТ Р 51631, 5.4.4.1 |
| 29 Соответствие высоты номеров этажей на указателе местоположения кабины установленным требованиям | ГОСТ Р 51631, 5.4.4.1 |
| 30 Наличие речевого информатора в кабине, сообщающего номер этажа при остановке кабины | ГОСТ Р 51631, 5.4.4.2 |
| 31 Наличие аварийных звуковых и визуальных сигналов на посту управления кабины | ГОСТ Р 51631, 5.4.4.3 |
Таблица Ж.5
| Специальные требования безопасности, контролируемые при проведении технического освидетельствования лифта, обеспечивающего транспортирование пожарных во время пожара | Обозначение нормативного документа, устанавливающего соответствующее требование |
| 1 Соответствие грузоподъемности лифта установленным требованиям | ГОСТ Р 52382, 5.2.1 |
| 2 Соответствие размера кабины лифта, в котором предусматривается возможность транспортирования спасаемых людей на носилках, установленным требованиям | ГОСТ Р 52382, 5.2.3 |
| 3 Соответствие дверного проема кабины и шахты лифта установленным требованиям | ГОСТ Р 52382, 5.2.4 |
| 4 Соответствие скорости перемещения кабины лифта установленным требованиям | ГОСТ Р 52382, 5.2.5 |
| 5 Наличие пиктограммы, установленного образца, на основном посадочном этаже около проема двери шахты лифта для пожарных | ГОСТ Р 52382, 5.2.6 |
| 6 Наличие люка в крыше кабины и соответствие размеров люка в свету установленным требованиям | ГОСТ Р 52382, 5.3.1 |
| 7 Наличие звукового сигнала в кабине лифта о включении режима "Пожарная опасность" | ГОСТ Р 52382, 5.6.1.4 |
| 8 Соответствие функционирования лифта в режиме "Пожарная опасность" установленным требованиям | ГОСТ Р 52382, 5.6.1.6 |
| 9 Соответствие функционирования лифта в режиме "Перевозка пожарных подразделений" установленным требованиям | ГОСТ Р 52382, 5.6.2.1 |
| 10 Наличие в кабине лифта средств для подключения к системе двусторонней переговорной связи и обеспечение связи в режиме "Перевозка пожарных подразделений" между диспетчерским пунктом или центральным пультом управления системы противопожарной защиты и кабиной лифта, а также с основным посадочным этажом | ГОСТ Р 52382, 5.7.1 |
Приложение И
(обязательное)
Перечень технической документации, наличие которой контролируется при проведении технического освидетельствования
| Комплектность технической документации | Обозначение нормативного документа, устанавливающего соответствующее требование |
| 1 Наличие паспорта лифта | ТР ТС 011/2011, ст.3, пункт 3 |
| 2 Наличие принципиальной электрической схемы лифта с перечнем элементов | ТР ТС 011/2011, ст.3, пункт 3 |
| 3 Наличие принципиальной гидравлической схемы (для гидравлического лифта) | ТР ТС 011/2011, ст.3, пункт 3 |
| 4 Наличие копии сертификата соответствия на лифт | ТР ТС 011/2011, ст.3, пункт 3 |
| 5 Наличие копии сертификата соответствия на замок двери шахты* | ТР ТС 011/2011, ст.3, пункт 3 |
| 6 Наличие копии сертификата соответствия на ограничитель скорости кабины* | ТР ТС 011/2011, ст.3, пункт 3 |
| 7 Наличие копии сертификата соответствия на ограничитель скорости противовеса* | ТР ТС 011/2011, ст.3, пункт 3 |
| 8 Наличие копии сертификата соответствия на ловители кабины* | ТР ТС 011/2011, ст.3, пункт 3 |
| 9 Наличие копии сертификата соответствия на ловители противовеса* | ТР ТС 011/2011, ст.3, пункт 3 |
| 10 Наличие копии сертификата соответствия на буфер кабины* | ТР ТС 011/2011, ст.3, пункт 3 |
| 11 Наличие копии сертификата соответствия на буфер противовеса* | ТР ТС 011/2011, ст.3, пункт 3 |
| 12 Наличие копии сертификата соответствия на разрывной клапан* | ТР ТС 011/2011, ст.3, пункт 3 |
| 13 Наличие копии сертификата на противопожарные двери (при необходимости) | ТР ТС 011/2011, ст.3, пункт 3 |
| 14 Наличие проектной документации на установку (модернизацию) лифта | ТР ТС 011/2011, ст.6, пункт 3.3 |
| 15 Наличие заключения по результатам оценки соответствия лифта, отработавшего назначенный срок службы** | ТР ТС 011/2011, ст.6, пункт 5.3 |
| 16 Наличие руководства (инструкции) по эксплуатации | ТР ТС 011/2011, ст.3, пункт 3 |
| 17 Наличие инструкции по монтажу | ТР ТС 011/2011, ст.3, пункт 3 |
| 18 Наличие монтажного чертежа | ТР ТС 011/2011, ст.6, пункт 3.1 |
* Устройства безопасности лифта, изготавливаемые предприятием - изготовителем лифта, используемые им для комплектования лифтов собственного производства и поставляемые в качестве запасных частей для замены идентичных устройств безопасности на лифтах собственного производства, не подлежат обязательной сертификации.
** Для лифтов, на которых проведена модернизация.
(Измененная редакция, Изм. N 1, 2).
Приложение К
(рекомендуемое)
Содержание проектной документации на установку лифта
Проектная документация на установку лифта содержит:
- задание на проектирование строительной части лифта, которое включает общий вид шахты с указанием минимально допустимых размеров строительной части для размещения оборудования лифта, а также величины нагрузок на строительную часть, возникающих в режиме "Нормальная работа" и при испытаниях лифта;
- чертеж строительной части здания, предназначенный для установки лифта;
- чертежи доработки (и усиления, в случае необходимости) существующей строительной части (при необходимости доработки);
- анализ рисков технических решений, отличающихся от требований ГОСТ Р 53780, выполненный по ГОСТ Р 53387 (в случае принятия технических решений, отличающихся от регламентируемых ГОСТ Р 53780);
- заключение по результатам инженерно-технического обследования строительной части здания в месте установки лифта, содержащее обоснованные выводы, о том, что прочность существующей строительной части здания достаточна, для того чтобы выдержать нагрузки, возникающие при эксплуатации и испытаниях лифта (при замене лифта в существующем здании или при реконструкции здания, предусматривающей замену лифта). В случае недостаточной прочности существующей строительной части здания, заключение должно содержать рекомендации по мероприятиям, компенсирующим недостаток прочности строительных конструкций.
Проектная документация на установку лифта при строительстве, а также при реконструкции или капитальном ремонте здания, предусматривающая замену лифта, может входить в состав общего проекта на строительство (реконструкцию, капитальный ремонт) здания.
По инициативе владельца лифта (заказчика) допускается осуществлять проверку проектной документации на соответствие требованиям ТР ТС 011/2011 и взаимосвязанных с техническим регламентом стандартов. Проверку осуществляет орган по сертификации, область аккредитации которого в качестве наименования объекта включает лифты.
На основании результатов проверки орган по сертификации оформляет заключение. Заключение должно содержать следующую информацию:
- результаты проверки требований;
- выводы о соответствии (или несоответствии) проектной документации требованиям ТР ТС 011/2011 и взаимосвязанных с ТР ТС 011/2011 стандартов;
- рекомендации по внесению изменений в проектную документацию на установку (модернизацию) лифта (в случае несоответствия проектной документации установленным требованиям).
Приложение К (Введено дополнительно, Изм. N 2).
Приложение Л
(рекомендуемое)
Акт выполнения корректирующих мероприятий

Приложение Л (Введено дополнительно, Изм. N 2).
Приложение М
(рекомендуемое)
Содержание сведений, направляемых испытательной лабораторией (центром) в аналитический центр
Сведения должны содержать:
- адрес объекта установки лифта;
- идентификационный (заводской, регистрационный) номер лифта;
- наименование монтажной организации или заказчика;
- дату записи в паспорте лифта о результатах проверок, испытаний и измерений, а также фамилию и инициалы специалиста, проводившего испытания;
- назначение, номинальную грузоподъемность, номинальную скорость, число остановок, наименование изготовителя лифта.
Приложение М (Введено дополнительно, Изм. N 2).
Приложение Н
(обязательное)
Перечень дефектов, неисправностей, несоответствий, создающих недопустимый уровень риска при эксплуатации лифта
1. Несоответствие установки оборудования лифта документации по монтажу и проектной документации по установке лифта в здание (сооружение) (приложение В, В.2.3), а именно:
- отсутствуют сплошные двери в дверных проемах шахты, помещений с расположенным оборудованием лифта;
- не обеспечена безопасность обслуживающего персонала, находящегося на крыше кабины и в приямке лифта, оборудованного лебедкой с канатоведущим шкивом или барабаном трения, в соответствии с установленными требованиями;
- имеется возможность прикосновения (доступа) к движущимся частям и оборудованию лифта (за исключением аппаратов управления, расположенных в кабине), расположенного в шахте и помещениях с оборудованием лифта пользователей и посторонних лиц;
- отсутствие ловителей на противовесе (если под буфером противовеса отсутствует опора, доходящая до монолитного основания), в случае нахождения под приямком лифта пространства (помещения), доступного для людей.
2. Несоответствие функционирования лифта руководству (инструкции) по эксплуатации (приложение В, В.2.4), а именно:
- система управления лифта с номинальной скоростью не менее 1,6 м/с не обеспечивает предварительное замедление перед крайними этажными площадками, дублирующее действие рабочего замедления кабины;
- отсутствуют средства и (или) меры для эвакуации пассажиров, в том числе отсутствует возможность перемещения кабины при отключении основного источника электропитания лифта;
- не срабатывает устройство реверсирования автоматических дверей, при нахождении в дверном проеме препятствия;
- отсутствует (не работает) устройство, контролирующее перегрузку кабины и предотвращающее движение кабины при размещении в ней груза, массой, превышающей номинальную грузоподъемность лифта на 10%, но не менее чем на 75 кг.
3. Несоответствие функционирования устройств безопасности лифта установленным требованиям (приложение В, В.3), а именно:
- ограничитель скорости не срабатывает, если скорость движения кабины (противовеса, уравновешивающего устройства кабины) вниз превысит номинальную скорость более чем на значение, установленное ГОСТ Р 53780-2010 (подпункты 5.4.7.1, 5.4.7.2), при проверке функционирования ограничителя скорости по В.3.1;
- ловители не останавливают и не удерживают на направляющих движущуюся вниз кабину (противовес, уравновешивающее устройство кабины) при проверке функционирования ловителей по В.3.2;
- среднее ускорение (замедление) кабины, при проверке функционирования буфера по В.3.3, превышает величину 9,81 м/с;
- отсутствует масло в гидравлическом буфере;
- имеются повреждения и остаточная деформация ловителей, буфера (буферов) после проверки функционирования устройств безопасности по В.3.1-В.3.3;
- автоматический замок не запирает дверь шахты прежде, чем кабина отойдет от уровня этажной площадки на расстояние 200 мм;
- имеется возможность движения кабины после перемещения запирающего элемента автоматического замка двери шахты менее чем на 7 мм в ответную часть замка, при проверке функционирования замка двери шахты по В.3.5;
- электрические устройства безопасности, указанные в В.3.6, не функционируют в соответствии с требованиями, установленными взаимосвязанными с ТР ТС 011/2011 стандартами;
- электрические устройства безопасности, указанные в В.3.6, при срабатывании не размыкают цепь безопасности и не предотвращают пуск электродвигателя главного привода или не вызывают его остановку.
4. Невыполнение требований к изоляции электрических цепей и электрооборудованию лифта, к заземлению (занулению) электрооборудования лифта (приложение В, В.4.5), а именно:
- имеется доступ пользователей и посторонних лиц к частям лифта, находящимся под напряжением более 42 В переменного тока или более 60 В постоянного тока.
5. Отрицательные результаты испытания сцепления тяговых элементов с канатоведущим шкивом (барабаном трения) (приложение В, В.4.3), а именно:
- при проведении испытания лифта по В.4.3 на нижнем этаже не происходит полная остановка кабины до ее соприкосновения с буфером;
- при испытании по В.4.3 происходит подъем (подтягивание) кабины.
6. Отрицательные результаты испытания тормозной системы на лифте с электрическим приводом (приложение В, В.4.1), а именно:
- тормоз не останавливает привод при проведении испытания лифта по В.4.1;
- среднее ускорение (замедление) кабины при проведении испытания лифта по В.4.1 превышает величину 9,81 м/с.
7. Отрицательные результаты испытания герметичности гидроцилиндра и трубопровода на лифте с гидравлическим приводом (приложение В, В.4.4), а именно:
- имеется течь масла из гидроцилиндра и трубопровода гидропривода лифта при проведении испытания лифта по В.4.4;
- разрывной клапан срабатывает позже момента увеличения скорости движения кабины вниз на величину, на 0,3 м/с превышающую номинальную скорость при проведении проверки функционирования лифта по В.3.4;
- величина среднего ускорения (замедления) кабины при ее остановке разрывным клапаном превышает 9,81 м/с при проведении испытания лифта по В.3.4.
8. Отрицательные результаты испытания прочности кабины, тяговых элементов подвески и (или) опоры кабины, элементов их крепления (приложение В, В.4.6), а именно:
- имеются повреждения и остаточная деформация металлоконструкций и несущих элементов кабины, тяговых элементов, деталей подвески (опоры) кабины, противовеса (уравновешивающего устройства кабины) после проведения испытания по В.4.6;
- имеются повреждения и остаточная деформация металлоконструкций, несущих элементов кабины, тяговых элементов, деталей подвески (опоры) кабины, противовеса (уравновешивающего устройства кабины) после проверки функционирования устройств безопасности по В.3.1-В.3.3.
9. Несоответствие смонтированного лифта сертификату соответствия, действовавшему в период изготовления лифта (приложение В, В.2.1), а именно:
- отсутствие требуемых сертификатов соответствия;
- несоответствие лифта сертификату соответствия.
10. Несоответствие комплектности технической документации установленным требованиям (приложения В (В.1), И), а именно:
- отсутствие паспорта лифта;
- отсутствие проектной документации на установку лифта;
- отсутствие документации по монтажу.
Приложение Н (Введено дополнительно, Изм. N 2).
Электронный текст документа
подготовлен ЗАО "Кодекс" и сверен по:
официальное издание
М.: Стандартинформ, 2010
Редакция документа с учетом
изменений и дополнений подготовлена АО "Кодекс"
